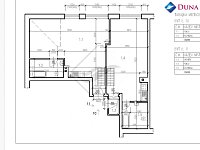
Nabízíme exkluzivně mezonetový byt 1+kk o celkové výměře 44 m2 v družstevním vlastnictví se splacenou anuitou a jižní orientací v klidné lokalitě Prahy 6. Byt se nachází ve 3 podlaží bez výtahu. Dispozice 1+kk v mezonetovém uspořádání je kreativní výzvou pro dokonalé využití prostoru. Na hlavní obytný prostor o výměře 37 m2 se vstupem do patra, která má 7 m2, navazuje kuchyňský kout a koupelna s WC. Součástí bytu je zádveří s plynovým kotlem. Hlavní prostor má plovoucí podlahy, ostatní prostory mají dlažbu s podlahovým topením, okna plastová. Dům je cihlový z roku 1948 ve výborném stavu. Blízké okolí nabízí nákupní a restaurační možnosti, dětské hřiště i velmi dobrou dostupnost MHD - 3 minuty na metro Veleslavín a blízkost letiště Ruzyně i skvělé parkovací možnosti. Pro další období připravujeme k prodeji vedlejší byt 1+kk, který bude možné s nabízeným bytem spojit.
Bc. Roman Vagenknecht
E-mail:
roman.vagenknecht@dhreality.cz
Telefon: 724216553
Aktuálně zastupuje u 2 nemovitostí
Duna House
Ověřená realitní kancelář
Aktuálně má v nabídce 78 nemovitostí
| Číslo zakázky | LK148491 |
| Typ | Prodej |
| Provize | včetně provize |
| Právní servis | včetně právního servisu |
| Kategorie | Byty |
| Podkategorie | 1+kk |
| Umístění objektu | Klidná část obce |
| Užitná plocha | 44 m² |
| Podlahová plocha | 44 m² |
| Stavba | Cihlová |
| Stav objektu | Dobrý |
| Vlastnictví | Družstevní |
| Počet podlaží | 3 |
| Voda | Dálkový vodovod |
| Elektřina | 230V, 400V |
| Odpad | Veřejná kanalizace |
| Topení | Lokální plynové |
| Podlaží | 3 |
| Balkon | Ne |
| Lodžie | Ne |
| Terasa | Ne |
| Garáž | Ne |
| Parkování | Ne |
| Sklep | Ne |
| Výtah | Ne |
| Výška stropu | 2.33 |
| Energetická náročnost budovy | G - Mimořádně nehospodárná |