Řazení: od nejnovějších | od nejlevnějších  |  Nejdříve ověřené RK: ano | ne

Prodej dvou bytového domu v Radvanicích
Komerční | Činžovní dům | 179m²
před 10 dny 5 490 000

Prodej řadového rodinného domu v Radvanicích
Dům | Rodinný | 170m²
před 10 dny 5 490 000
včetbně provize a právního servisu
5 490 000
včetbně provize a právního servisu

Prodej řadového rodinného domu v Radvanicích

Radvanice, okres Přerov

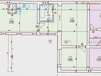
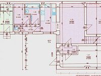
Prodej řadového rodinného domu s průjezdem, který nabízí prostor a soukromí pro větší rodinu, nebo může být zajímavou investiční příležitostí. Dům je v současnosti řešen jako dvougenerační, resp. dvojbytový dům s dvěma nezávislými vchody v rámci dvou nadzemních podlaží. Menší byt o užitné ploše 78 m2 je řešen jako 3+kk , větší byt s užitnou plochou 94 m2 je řešen jako 4+1. Stavba je celopodsklepená, po rozsáhlé rekonstrukci a to včetně vnitřních rozvodů (el. měď, voda, odpady, plast), výměně hromosvodu, výměně oken (plastová s trojskly), zateplení půdního prostoru a prostoru nad průjezdem (foukaná vata) a revitalizaci fasády (silikonový nátěr). Dům je napojen na obecní vodovod, plyn , el. 220/380, odpady jsou svedeny do septiku. Vytápění je řešeno ústředním rozvodem, napojeným pro každý byt na samostatný plynový kotel . Kotle zajišťují zároveň ohřev TUV. Každý byt má svůj podružný měřič elektřiny, plynu a vody. Za domem se nachází udržovaná, mírně svažitá zahrada o výměře 439 m2. Parkovací stání před domem. Dopravní dostupnost je velmi dobrá. Bydlení se nachází v dostupnosti cca 5 km od nájezdu na D1, příměstská autobusová doprava zajíždí do obce. Bez poplatku zajistíme profesionální návrh financování včetně jeho expresní realizace.


Prohlídky a prodej zprostředkuje

Ing. Pavel Vrba MBA
E-mail: pavel.vrba@kdomovu.com
Telefon: +420739030285

Aktuálně zastupuje u 19 nemovitostí


Nezávazně se zeptejte! chcete více informací o nemovitosti?

Odesláním souhlasíte s poskytnutím dat třetí straně (= realitní kanceláři). Nezbytné, abychom dotaz mohli poslat. Vaše data nezneužijeme.
Pole označené (*) jsou povinné.

Zastupující realitní kancelář

K domovu, s.r.o.
Ověřená realitní kancelář

Aktuálně má v nabídce 48 nemovitostí


Sdílejte nemovitost

Trvalý odkaz
Kontaktovat prodejce

Číslo zakázky 2025102
Typ Prodej
Provize včetně provize
Právní servis včetně právního servisu
Kategorie Domy
Podkategorie Rodinný
Umístění objektu Klidná část obce
Plocha pozemku 439 m²
Plocha zahrady 439 m²
Užitná plocha 170 m²
Podlahová plocha 180 m²
Počet místností 5 a více pokojů
Nízkoenergetický Ne
Stavba Cihlová
Stav objektu Velmi dobrý
Bezbariérový Ne
Počet podlaží 2
Odpad Septik
Balkon Ne
Lodžie Ne
Terasa Ne
Bazén Ne
Garáž Ne
Parkování Ano
Míst k parkování 1
Sklep Ne
Výtah Ne
Energetická náročnost budovy D - Méně úsporná
Doprava Dálnice, Autobus
Komunikace Asfaltová


Inzerát exportován programem: realitní správce 29.8.2025 000 14:07 (poslední úprava: 10.3.2026 000 18:03)
Chcete získat více informací o nemovitosti?
Načítání...