Řazení: od nejnovějších | od nejlevnějších  |  Nejdříve ověřené RK: ano | ne

Rodinný dům 2x 3+1 + garsonka, zahrada, velká garáž s dílnou – Brno Černovice
Komerční | Ostatní | 350m²
před 2 měsíci 24 150 000

Rodinný dům 2x 3+1 + garsonka, zahrada, velká garáž s dílnou – Brno Černovice
Dům | Vícegeneracní dům | 350m²
před 2 měsíci 24 150 000

Prodej bytu 4+1, 171 m2, Skácelova, Brno, Královo Pole
Byt | 4+1 | 171m²
před 2 měsíci 10 300 000

Prodej mezonetového bytu 4+kk + bar, 15.P, 446 m2, Majdalenky, Brno - Lesná
Byt | 4+kk | 446m²
před 2 měsíci 41 000 000

Prodej garáže Bystrc
Ostatní | Garáž | 22m²
před 2 měsíci 896 000

Prodej nebytového prostoru 87m2 Brno - Žabovřesky
Komerční | Obchodní prostory | 87m²
před 4 měsíci 7 490 000
Prodej bytu 1+1 38,2 m2 + sklep, ul. Kopečná, Staré Brno
Byt | 1+1 | 38m²
před 19 dny 4 290 000
Prodej parkovacího stání na zakladači Brno Královo
Ostatní | Garážové stání | 11m²
před měsícem 530 000
+ provize RK
Prodej komerčního areálu 6100 m², Brno - Maloměřice
Komerční | Výroba | 6100m²
před měsícem
Prodej komerčního pozemku 16065 m², Brno - Maloměřice
Pozemek | Komerční | 16065m²
před měsícem
18 850 000

Velký rodinný dům s garáží, terasami s krásným výhledem a zahradou v Brně

Ulice Šemberova v Brnu; Brně, okres Brno-město

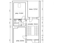
EXKLUZIVNÍ NADSTANDARDNÍ RODINNÝ DŮM S VÝHLEDEM V BRNĚ-BYSTRCI – IDEÁLNÍ PRO VELKOU RODINU I INVESTICI! Toužíte po prostorném a klidném bydlení v Brně, kousek od Brněnské přehrady? Tento jedinečný řadový rodinný dům nabízí flexibilitu a komfort pro Vaši rodinu, ale také skvělý investiční potenciál. Co Vás čeká uvnitř? SUTERÉN – Funkční zázemí s přímým vstupem na zahradu: Garsonka s vlastním sociálním zařízením – ideální pro hosty nebo pronájem. Technická místnost s plynovým kotlem pro efektivní vytápění. Prádelna a sklad – dostatek úložného prostoru. PŘÍZEMÍ – Srdce domova s přímým napojením na terasu a zahradu: Integrovaná garáž pro Vaše vozidlo. Prostorná vstupní chodba s navazujícím schodištěm. Kuchyně ve tvaru L s jídelnou a obývacím pokojem – ideální pro rodinný život. Velká terasa s přímým vstupem na zahradu. DALŠÍ PATRA – Soukromí a komfort: 1. patro: Samostatná koupelna s vanou a WC, velký pokoj s prostornou šatnou. 2. patro: Pokoj s vlastní terasou a další pokoj s vestavěnou skříní. 3. patro: Malý pokoj s kuchyňkou a velký prosvětlený pokoj. 4. patro: Pokoj – posilovna, koupelna s WC a vstup na velkou terasu s výhledem. PŮDA – Možnost vybudování další bytové jednotky o velikosti 2+1 – skvělý investiční potenciál! Zahrada – Vaše soukromé království: Krásná zahrada s maximálním soukromím, potenciál pro bazén a pěstování zeleniny. + ovocné rodící stromky Lokalita – To nejlepší z Brna: Brno-Bystrc s kompletní občanskou vybaveností, klid a zeleň, blízko Brněnské přehrady ideální pro volnočasové aktivity. Tento dům je ideální pro: Velkou rodinu: Každý člen má své soukromí. Investory: Potenciál rozdělení na více bytových jednotek. Nenechte si ujít tuto jedinečnou příležitost vlastnit výjimečný dům, který spojuje komfort městského života s klidem přírody. Kontaktujte nás ještě dnes a domluvte si prohlídku! Při vyšším počtu zájemců si majitel vyhrazuje právo aukce.


Prohlídky a prodej zprostředkuje

Eva Minaříková
E-mail: nemovitostieva@seznam.cz
Telefon: +420 739 144 823

Aktuálně zastupuje u 7 nemovitostí


Nezávazně se zeptejte! chcete více informací o nemovitosti?

Odesláním souhlasíte s poskytnutím dat třetí straně (= realitní kanceláři). Nezbytné, abychom dotaz mohli poslat. Vaše data nezneužijeme.
Pole označené (*) jsou povinné.

Zastupující realitní kancelář

LeoReal
Ověřená realitní kancelář

Aktuálně má v nabídce 165 nemovitostí


Sdílejte nemovitost

Trvalý odkaz
Kontaktovat prodejce

Číslo zakázky Em74
Typ Prodej
Provize včetně provize
Právní servis včetně právního servisu
Kategorie Domy
Podkategorie Rodinný
Umístění objektu Klidná část obce
Plocha pozemku 455 m²
Plocha zahrady 335 m²
Užitná plocha 320 m²
Zastavěná plocha 120 m²
Podlahová plocha 440 m²
Počet místností 5 a více pokojů
Nízkoenergetický Ne
Stavba Cihlová
Stav objektu Dobrý
Bezbariérový Ne
Počet podlaží 4
Počet podzemních podlaží 1
Voda Dálkový vodovod
Elektřina 400V
Plyn Plynovod
Odpad Veřejná kanalizace
Topení Ústřední plynové
Balkon Ano
Lodžie Ne
Terasa Ano
Bazén Ne
Garáž Ano
Počet garáží 1
Parkování Ano
Míst k parkování 2
Sklep Ne
Výtah Ne
Energetická náročnost budovy G - Mimořádně nehospodárná
Zástavba Obytná


Inzerát exportován programem: realitní správce 13.1.2026 000 13:12 (poslední úprava: 18.1.2026 000 19:20)
Chcete získat více informací o nemovitosti?
Načítání...