Řazení: od nejnovějších | od nejlevnějších  |  Nejdříve ověřené RK: ano | ne
Prodej bytu 2+kk s předzahrádkou – Rezidence Cikorka, Praha – Modřany
Byt | 2+kk | 47m²
před 6 měsíci 10 453 500
Neplatíte žádnou provizi RK, prodej přímo od developera., včetně DPH
3+kk/B, 84,5m2, Praha 9 - Libeň, před rekonstrukcí
Byt | 3+kk | 80m²
před 10 měsíci 8 500 000
Velmi pěkný mezonetový byt 4+kk, 2x terasa, Praha 5, Smíchov
Byt | 4+kk | 176m²
před 12 měsíci 25 000 000
cena včetně provize a právního servisu
8 190 000
+popl. 5143

Byt 3+1 s lodžií a výhledem na park

Ulice Zázvorkova v Praze, okres Hlavní město Praha

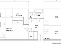
________________________________________ Prodej bytu 3+1, 85,2 m², Praha 13 – Stodůlky, Zázvorkova 1997/26 Hledáte prostorný byt pro rodinu, ve skvělé lokalitě Prahy 13, s krásným výhledem, nízkými provozními náklady a okamžitou možností nastěhování? Právě jste ho našli. Nabízím k prodeji družstevní byt 3+1 o velikosti 85,2 m², který se nachází v 9. patře revitalizovaného panelového domu v žádané lokalitě Stodůlky – Praha 13. ________________________________________ Dispozice a stav bytu Byt má velmi prakticky řešenou dispozici, ideální pro rodinu s dětmi: • prostorný obývací pokoj • dvě samostatné ložnice • kuchyně • koupelna ve velmi udržovaném stavu s původním jádrem • samostatné WC • komora přímo v bytě • zasklená lodžie • sklepní kóje Ložnice jsou orientované na severovýchod s otevřeným výhledem, společné prostory bytu pak do klidného vnitrobloku na jihozápad, díky čemuž je byt světlý, vzdušný a příjemný po celý den. Byt je ve velmi dobrém a udržovaném stavu, prošel částečnou rekonstrukcí: • původní bytové jádro • původní rozvody elektřiny • plastová okna se žaluziemi • podlahy: plovoucí PVC, linoleum a dlažba • velkorysé úložné prostory na chodbě ________________________________________ Dům a provoz Panelový dům je po kompletní revitalizaci, což se pozitivně odráží na: • nízkých měsíčních nákladech • dobrém technickém stavu domu (FVE, vlastní kotelna s tepelnými čerpadly) • kultivovaném společném prostoru ________________________________________ Lokalita – Praha 13, Stodůlky Jedna z nejvyhledávanějších lokalit pro rodiny s dětmi v Praze. • metro B – Lužiny (výborná dostupnost do centra) • několik mateřských a základních škol v docházkové vzdálenosti • nákupní centra, supermarkety, lékárny • parky a zeleň ideální pro sport i relax (dětská hřiště, cyklostezky) • ☕ restaurace, kavárny, bistra • sportovní zařízení, fitness centra, plavecký bazén Lokalita nabízí kompletní občanskou vybavenost


Prohlídky a prodej zprostředkuje

Lenka Pechová
E-mail: pechova@dumrealit.cz
Telefon: 725 811 011

Aktuálně zastupuje u 8 nemovitostí


Nezávazně se zeptejte! chcete více informací o nemovitosti?

Odesláním souhlasíte s poskytnutím dat třetí straně (= realitní kanceláři). Nezbytné, abychom dotaz mohli poslat. Vaše data nezneužijeme.
Pole označené (*) jsou povinné.

Zastupující realitní kancelář

Dumrealit.cz
Ověřená realitní kancelář

Aktuálně má v nabídce 856 nemovitostí


Sdílejte nemovitost

Trvalý odkaz
Kontaktovat prodejce

Číslo zakázky 655299
Typ Prodej
Kategorie Byty
Podkategorie 3+1
Užitná plocha 85 m²
Podlahová plocha 85 m²
Stavba Panelová
Stav objektu Dobrý
Vlastnictví Družstevní
Vybavení Ano
Počet podlaží 12
Topení Ústřední dálkové
Podlaží 10
Balkon Ne
Lodžie Ano
Terasa Ne
Garáž Ne
Parkování Ne
Sklep Ano
Výtah Ano
Energetická náročnost budovy B - Velmi úsporná
Ukazatel energetické náročnosti budovy 73


Inzerát vytvořen 16.2.2026 000 09:43 (poslední úprava: 18.2.2026 000 12:21)
Chcete získat více informací o nemovitosti?
Načítání...