Řazení: od nejnovějších | od nejlevnějších  |  Nejdříve ověřené RK: ano | ne

Pronájem pozemku, 2335 m2, Trhové Dušníky
Pozemek | Pole | 2335m²
před 11 měsíci

Byt 1+1, Kraslice, Wolkerova ul.
Byt | 1+1 | 36m²
před 11 měsíci 1 299 000

Prodej stavebního pozemku v Ropici
Pozemek | Bydlení | 1881m²
před 11 měsíci 4 200 000

Prodej dvougenerační funkcionalistické vily v Turnově
Dům | Rodinný | 206m²
před 11 měsíci 14 900 000

Sídlo firmy, prodejna, provozovna, restaurace, kanceláře, komerční nemovitost, 450m2, Dolní Benešov
Komerční | Obchodní prostory | 420m²
před 11 měsíci 10 000 000

Nabídka slunné vinice v Dolních Dunajovicích
Pozemek | Sady/vinice | 867m²
před 11 měsíci 144 675
SLEVA!

Pozemek určený k výsadbě vinice v Dolních Dunajovicích
Pozemek | Sady/vinice | 992m²
před 11 měsíci 135 500
SLEVA!

Prodej souboru pozemků, 14 472 m2, Vlkančice
Pozemek | Bydlení | 14472m²
před 11 měsíci

Chalupa, po rekonstrukci, zahrada 329 m2, Podhradí
Byt | 3+1 | 88m²
před 11 měsíci 3 900 000

Pronájem bytu 3+1/S, 69 m2, Praha 4 - Nusle, ul. Pujmanové.
Byt | 3+1 | 69m²
před 11 měsíci 21 000 za měsíc
+ 4.500,-Kč/měsíc poplatky + elektřina a plyn
4 900 000
Cena k jednání

Byt 3+1 Uherské Hradiště

Ulice Tůně v Uherském Hradišti, okres Uherské Hradiště

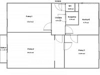
Ve výhradním zastoupení majitele vám zprostředkujeme prodej družstevního bytu 3+1 s balkonem v blízkosti centra Uherského Hradiště. Byt se nachází ve 4. nadzemním podlaží zděného bytového domu a nabízí celkovou plochu 68 m² a sklepní kóji. Dispozice bytu je velmi praktická: samostatná kuchyně, prostorný obývací pokoj s balkonem a dvě ložnice. Byt je v původním technickém stavu a určený ke kompletní rekonstrukci. V obytných místnostech jsou původní parketové podlahy, stěny jsou hladké, omítky původní, plastová okna. Koupelna je vybavena vanou, WC je samostatné. Kuchyně je původní s plynovým sporákem, rozvody jsou původní. Měsíční náklady na bydlení činí přibližně 3 000 Kč (záloha na vodu, služby vč. fondu oprav, poplatky za správu) + zálohy na elektřinu a plyn, což z bytu dělá ekonomicky velmi zajímavou nemovitost. Velkou předností je klidná lokalita v blízkosti centra Uherského Hradiště a řeky Moravy. Ideální pro rodiny s dětmi na procházky kolem Moravy, hřiště u domu a cyklostezka. V pěší dostupnosti najdete náměstí, obchody, kavárny, restaurace, školy, školky, lékaře i úřady. Město nabízí kompletní občanskou vybavenost, bohatý kulturní život a výbornou dopravní dostupnost – vlakové i autobusové nádraží jsou jen pár minut chůze. Tato nemovitost je ideální volbou pro klienty, kteří hledají byt v top lokalitě s možností zhodnocení po rekonstrukci, ať už pro vlastní bydlení nebo jako investici.


Prohlídky a prodej zprostředkuje

Mgr. Ivana Kočí
E-mail: ivana.koci@kdomovu.com
Telefon: +420775448188

Aktuálně zastupuje u 1 nemovitostí


Nezávazně se zeptejte! chcete více informací o nemovitosti?

Odesláním souhlasíte s poskytnutím dat třetí straně (= realitní kanceláři). Nezbytné, abychom dotaz mohli poslat. Vaše data nezneužijeme.
Pole označené (*) jsou povinné.

Zastupující realitní kancelář

K domovu, s.r.o.
Ověřená realitní kancelář

Aktuálně má v nabídce 45 nemovitostí


Sdílejte nemovitost

Trvalý odkaz
Kontaktovat prodejce

Číslo zakázky 2026-164
Typ Prodej
Provize včetně provize
Právní servis včetně právního servisu
Kategorie Byty
Podkategorie 3+1
Umístění objektu Klidná část obce
Užitná plocha 68 m²
Podlahová plocha 71 m²
Plocha balkonu 2 m²
Plocha sklepu 4 m²
Nízkoenergetický Ne
Stavba Cihlová
Stav objektu Před rekonstrukcí
Bezbariérový Ne
Vlastnictví Družstevní
Topení Ústřední dálkové
Podlaží 4
Balkon Ano
Lodžie Ne
Terasa Ne
Garáž Ne
Parkování Ne
Sklep Ano
Výtah Ne
Rok rekonstrukce 2005
Energetická náročnost budovy G - Mimořádně nehospodárná
Převod do OV Ano
Doprava Vlak, Silnice, MHD
Zástavba Obytná


Inzerát exportován programem: realitní správce 30.3.2026 000 10:04 (poslední úprava: 6.4.2026 000 13:03)
Chcete získat více informací o nemovitosti?
Načítání...