Řazení: od nejnovějších | od nejlevnějších  |  Nejdříve ověřené RK: ano | ne
Pronájem skladu, výrobních prostor 13.414 m², Teplice - Bílina, D8
Komerční | Sklady | 13414m²
před měsícem
Pronájem skladu, výrobních prostor 4.200 m², Ostrava, D1
Komerční | Sklady | 4200m²
před 19 dny
Pronájem skladu, výrobních prostor 5.000 m², Kladno
Komerční | Výroba | 5000m²
před 20 dny
na cenu se poptejte u makléře

Pronájem výrobních prostor 1 067 m², Brno

Ulice Zaoralova v Brnu; Brně, okres Brno-město

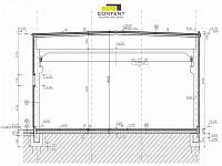
Pronájem výrobních prostor se zázemím v Brně Líšni. V zastoupení majitele a bez provize nabízíme výrobní prostory umístěně v nově vznikajícím výrobně - logistickém parku v Brně. - k nastěhování Q4/2026 - výrobní hala o půdorysné ploše 1067 m² - instalované patky na mostový jeřáb o nosnosti 5 tun - světlá výška 10 m, pojezdová dráha je ve výšce 8 metrů - bezprašné podlahy s nosností 5t/m² - 1x Drive IN pro možnost vjezdu nákladních aut do haly - všechny IS k dispozici - Dostatečný příkon elektřiny - kanceláře, showroom a sociální zázemí o celkové velikosti až 480 m² - vhodné jako sídlo společnosti - 20 parkovacích míst před halou - výborná dostupnost pro osobní i nákladní dopravu - dálnice D1 cca 3km - MHD a občanská vybavenost je v docházkové vzdálenosti cca. 360 m Cena je individuální dle konkrétních podmínek smlouvy. Pro více informací nás kontaktujte.


Prohlídky či pronájem zprostředkuje

Martin Nenička
E-mail: nenicka@contentreality.cz
Telefon: +420739314952

Aktuálně zastupuje u 114 nemovitostí


Nezávazně se zeptejte! chcete více informací o nemovitosti?

Odesláním souhlasíte s poskytnutím dat třetí straně (= realitní kanceláři). Nezbytné, abychom dotaz mohli poslat. Vaše data nezneužijeme.
Pole označené (*) jsou povinné.

Zastupující realitní kancelář

CONTENT REALITY s.r.o.

Aktuálně má v nabídce 632 nemovitostí


Sdílejte nemovitost

Trvalý odkaz
Kontaktovat pronajímatele
Tip: více fotografií k dispozici u makléře

Číslo zakázky 7178
Typ Pronájem
Kategorie Komerční
Podkategorie Výroba
Umístění objektu Rušná část obce
Užitná plocha 1,067 m²
Plocha kanceláří 1,067 m²
Stavba Skeletová
Stav objektu Novostavba
Garáž Ne
Parkování Ano
Datum nastěhování 01.09.2026
Energetická náročnost budovy C - Úsporná


Inzerát vytvořen 31.3.2026 000 12:32 (poslední úprava: 16.4.2026 000 06:42)
Chcete získat více informací o nemovitosti?
Načítání...