Řazení: od nejnovějších | od nejlevnějších  |  Nejdříve ověřené RK: ano | ne

Prodej, zahrada s chatkou, 453 m2, Opava
Dům | Chata | 453m²
před 4 dny 1 500 000

Prodej komerčního areálu s rodinným domem a halou v Opavě, ul. Krnovská
Dům | Rodinný | 701m²
před 24 dny 26 900 000

Prodej, rodinný dům, 250 m2, ul. Karlovecká, Opava
Dům | Rodinný | 250m²
před 3 měsíci 3 550 000

Prodej, zahrada s chatkou, 275 m2, Opava
Dům | Chata | 275m²
před 6 měsíci 1 550 000
26 900 000

Prodej komerčního areálu s rodinným domem a halou v Opavě, ul. Krnovská

Ulice Krnovská v Opavě, okres Opava

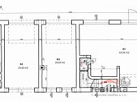
Nabízíme k prodeji komerční areál s rodinným domem a halou v Opavě, ul. Krnovská. Z Krnovské ulice je vjezd do průmyslového areálu. Průmyslový areál má zpevněné plochy pro parkování vozidel a skladování materiálu. Celková plocha pozemku je 1.602 m2. Rodinný dům s komerčním prostorem je zkolaudován v roce 2002. V 1.NP se nachází komerční prostory o výměře 144 m2 a zde se nachází 2x garáž, velká komerční prosklená místnost, WC, kuchyňka a prostor s kosmetickým salonem. V dalším poschodí se nachází byt o velikosti 6+kk 149 m2, zde se nachází schodiště se samostatným vchodem, chodba, WC, pracovna, 2x pokoj, dětský pokoj, obývací pokoj s jídelnou a kuchyní, ložnice, koupelna s vanou a WC, technická místnost. Vytápění domu je krbovými kamny a 2x plynovým kotlem. Teplá vody je zajišťována buď plynovým kotlem nebo 2x elektrickým bojlerem. Dále se v areálu nachází dvoupodlažní průmyslová hala o podlahové ploše 2x 214 m2. Hala byla zhotovena v roce 2008 a je řádně zkolaudovaná. Celý objekt je vhodný pro obchodní prostory nebo výrobnu. Celý areál lze také předělat minimálně na 7 bytových jednotek včetně parkovacích míst. Komerční areál je napojen na obecní vodovod, elektrickou energii, plyn a splaškovou veřejnou kanalizaci. Zajišťujeme také výhodné financování nemovitosti. Zájemci o prohlídku dle domluvy s panem Hořínkem..


Prohlídky a prodej zprostředkuje

Ing. Václav Hořínek
E-mail: horinek@1realitka.cz
Telefon: 602563036

Aktuálně zastupuje u 22 nemovitostí


Nezávazně se zeptejte! chcete více informací o nemovitosti?

Odesláním souhlasíte s poskytnutím dat třetí straně (= realitní kanceláři). Nezbytné, abychom dotaz mohli poslat. Vaše data nezneužijeme.
Pole označené (*) jsou povinné.

Zastupující realitní kancelář

1. opavská realitka
Ověřená realitní kancelář

Aktuálně má v nabídce 102 nemovitostí


Sdílejte nemovitost

Trvalý odkaz
Kontaktovat prodejce

Číslo zakázky 25267
Typ Prodej
Provize včetně provize
Právní servis včetně právního servisu
Kategorie Domy
Podkategorie Rodinný
Umístění objektu Rušná část obce
Plocha pozemku 1,602 m²
Užitná plocha 701 m²
Podlahová plocha 701 m²
Počet místností 5 a více pokojů
Nízkoenergetický Ne
Stavba Smíšená
Stav objektu Dobrý
Bezbariérový Ne
Počet podlaží 2
Voda Dálkový vodovod
Elektřina 230V, 400V
Plyn Plynovod
Odpad Veřejná kanalizace
Topení Ústřední plynové
Balkon Ne
Lodžie Ne
Terasa Ne
Bazén Ne
Garáž Ne
Parkování Ne
Sklep Ne
Výtah Ne
Energetická náročnost budovy G - Mimořádně nehospodárná


Inzerát exportován programem: realitní správce 5.8.2025 000 07:08 (poslední úprava: 13.11.2025 000 11:03)
Chcete získat více informací o nemovitosti?
Načítání...