Řazení: od nejnovějších | od nejlevnějších  |  Nejdříve ověřené RK: ano | ne

Krásná novostavba rodinného domu se zahradou a garáží v Rájově
Dům | Rodinný | 200m²
před 12 dny 8 290 000
5 690 000

Novostavba rodinného domu 3+kk s pozemkem 816 m2 v Rájově u Mariánských Lázní

Mnichov, okres Cheb

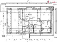
Naše společnost Vám zprostředkuje koupi novostavby rodinného domu 3+kk v Rájově u Mariánských Lázních. Dům se nachází na rovinatém pozemku o rozloze 816 m² u silnice s bezproblémovým přístupem. Dům o rozloze 97 m² nabízí dispozici 3+kk, je zde prostorný obývací pokoj spojený s kuchyňským koutem a francouzským oknem, z kterého je výstup na budoucí terasu, dále jsou zde dva samostatné pokoje, technická místnost, koupelna a samostatná toaleta. Dům z ytongových tvárnic má hotový krov s plechovou střechou ve tvaru tašek. V domě je připravena a rozvedena elektroinstalace, vodoinstalace, plastová okna, na podlahách je kombinace dlažby a vinylu. V domě jsou již hotové omítky, v prostorné koupelně s oknem je k dispozici vana i sprcha. Vytápění zajišťuje již dodané tepelné čerpadlo, v celém domě je podlahové vytápění, ohřev teplé vody zajišťuje bojler. Zdrojem vody je studna, dům je napojen na kanalizaci. Dům se prodává bez kuchyňské linky (je zde příprava). Součástí ceny není oplocení. Dokončená je venkovní bledě modrá omítka včetně zateplení. Obec Rájov se nachází v bezprostřední blízkosti Mariánských Lázní, nedaleko obce Zádub-Závišín, kde je vyhledávané golfové hřiště. Za domem je krásná cyklotrasa vedoucí přes Nimrod, Prameny, Polom, Kladskou a dále do Kynžvartu. V Mariánských Lázních je veškerá občanská vybavenost včetně úřadů, bank, restaurací, obchodů, jsou zde supermarkety LIDL, PENNY, TESCO, Kaufland, BILLA, DM, Planeo elektro, JYSK, super ZOO, TAKKO, KIK, Deichmann. Mariánské Lázně jsou úžasné místo pro život i odpočinek, jsou prošpikované sítí turistických, cyklistických a běžkařských tras. Sportovcům je k dispozici plavecký bazén, sportovní areál Viktorka, plochá dráha, zimní stadion pro bruslaře, lyžařská sjezdovka s lanovkou, jezdecká škola, tenisové kurty, v létě je v provozu koupaliště Lido s písečnou pláží. Úžasné městské parky nabízí krásná zákoutí: Kolonádu se zpívající fontánou a přilehlý labutí park, Ferdinandův pramen,


Prohlídky a prodej zprostředkuje

Edita Kostrounová
E-mail: kostrounova@cheb2.dumrealit.cz
Telefon: 725 160 344

Aktuálně zastupuje u 46 nemovitostí


Nezávazně se zeptejte! chcete více informací o nemovitosti?

Odesláním souhlasíte s poskytnutím dat třetí straně (= realitní kanceláři). Nezbytné, abychom dotaz mohli poslat. Vaše data nezneužijeme.
Pole označené (*) jsou povinné.

Zastupující realitní kancelář

Dumrealit.cz
Ověřená realitní kancelář

Aktuálně má v nabídce 794 nemovitostí


Sdílejte nemovitost

Trvalý odkaz
Kontaktovat prodejce

Číslo zakázky 653499
Typ Prodej
Kategorie Domy
Podkategorie Rodinný
Plocha pozemku 816 m²
Užitná plocha 97 m²
Zastavěná plocha 120 m²
Podlahová plocha 97 m²
Počet místností 3 pokoje
Stavba Cihlová
Stav objektu Velmi dobrý
Počet podlaží 1
Balkon Ne
Lodžie Ne
Terasa Ano
Bazén Ne
Garáž Ne
Parkování Ano
Míst k parkování 3
Sklep Ne
Energetická náročnost budovy B - Velmi úsporná


Inzerát vytvořen 23.10.2025 000 09:02 (poslední úprava: 22.11.2025 000 18:59)
Chcete získat více informací o nemovitosti?
Načítání...