Řazení: od nejnovějších | od nejlevnějších  |  Nejdříve ověřené RK: ano | ne

Prodej bytu 3+kk, 107m² - Praha 10 Strašnice
Byt | 3+kk | 107m²
před 1 minutami 10 700 000
Cena vč. provize RK a kompletního právního servisu

Prodej garážového stání, Praha 4 - Michle.
Ostatní | Garážové stání | 14m²
před 6 hodinami 780 000
Včetně provize RK, včetně právního servisu.

Prodej bytu 2+kk/terasa, 98,7 m2, Pod Harfou, Praha 9, Vysočany.
Byt | 2+kk | 99m²
před 7 hodinami 5 486 000

Prodej bytu 3+kk
Byt | 3+kk | 121m²
před 7 hodinami 18 900 000

Prodej rodinného domu 4+kk, pozemek 369 m²
Dům | Rodinný | 99m²
před 7 hodinami 9 300 000

Prodej domu 6+1 s garáží a terasou, Panenské Břežany.
Dům | Rodinný | 200m²
před 7 hodinami 16 900 000

Prodej bytu 1+kk
Byt | 1+kk | 32m²
před 7 hodinami 4 890 000

Prodej bytu 1+kk, 36,4 m2, Praha 4 - Chodov
Byt | 1+kk | 37m²
před 7 hodinami 6 299 000

Prodej stavebního pozemku 3573 m²
Pozemek | Bydlení | 3573m²
před 8 hodinami 9 900 000

Prodej bytu 1+1
Byt | 1+1 | 44m²
před 8 hodinami 6 495 000
30 000 000
+popl. 4000, cena včetně provize a právního systému

Prodej apartmánového domu 184m2, Dolní Morava

Dolní Morava, okres Ústí nad Orlicí

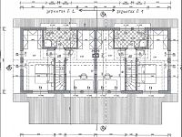
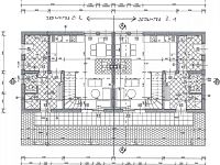
Naše společnost Vám zprostředkuje Nabízíme k prodeji moderní apartmánový dům se dvěma samostatnými a naprosto identickými jednotkami 3+kk, který se nachází v atraktivní horské lokalitě Dolní Morava – v údolí mezi Orlickými horami a Jeseníky, přímo na úpatí Králického Sněžníku. Novostavba z roku 2022 nabízí vysoký standard zpracování i vybavení a představuje ideální příležitost pro investici s okamžitým výnosem nebo vlastní rekreaci v jedné z nejžádanějších horských oblastí v ČR. Každý apartmán má užitnou plochu 92 m², vlastní vstup, technickou místnost a samostatné měření energií. V přízemí se nachází prostorný obývací pokoj s kuchyňským koutem a jídelnou, vstupní chodba s vestavěnou skříní a samostatná toaleta. V patře jsou dvě ložnice a koupelna se sprchovým koutem, umyvadlem a toaletou. Součástí každé jednotky je samostatná technická místnost s elektrickým kotlem, bojlerem, pračkou a úložnými skříněmi. Každý apartmán má také vlastní kryté venkovní posezení pod přesahem střechy, které poskytuje příjemné soukromí i krásný výhled na okolní hory. Apartmány jsou naprosto identické i v interiérovém vybavení – kompletně zařízené moderní kuchyně, kvalitní nábytek, designové koupelny a stylové dekorace. Vytápění je podlahové, připojené na elektrický kotel, dům je napojen na Wi-Fi připojení a je plně připraven k okamžitému provozu bez nutnosti dalších investic. Celková plocha pozemku činí 672 m² (z toho 150 m² zastavěná plocha a 522 m² zahrada). Parkování je zajištěno přímo na pozemku. Lokalita Dolní Morava Dolní Morava patří mezi nejznámější a nejvyhledávanější horská střediska v České republice. Nachází se v malebném údolí mezi Orlickými horami a Jeseníky, pod vrcholem Králického Sněžníku (1 424 m n. m.). Dům je situován přímo mezi dvěma hlavními lyžařskými areály – Sněžník a Větrný vrch, které jsou vzdálené pouhých cca 500 metrů. Oblast nabízí celoroční rekreační vyžití – v zimě moderní skiareály a běžkařské


Prohlídky a prodej zprostředkuje

Michal Gažo
E-mail: gazo@dumrealit.cz
Telefon: 774 502 652

Aktuálně zastupuje u 9 nemovitostí


Nezávazně se zeptejte! chcete více informací o nemovitosti?

Odesláním souhlasíte s poskytnutím dat třetí straně (= realitní kanceláři). Nezbytné, abychom dotaz mohli poslat. Vaše data nezneužijeme.
Pole označené (*) jsou povinné.

Zastupující realitní kancelář

Dumrealit.cz
Ověřená realitní kancelář

Aktuálně má v nabídce 794 nemovitostí


Sdílejte nemovitost

Trvalý odkaz
Kontaktovat prodejce

Číslo zakázky 653548
Typ Prodej
Provize včetně provize
Kategorie Domy
Podkategorie Rodinný
Plocha pozemku 672 m²
Užitná plocha 184 m²
Zastavěná plocha 150 m²
Podlahová plocha 184 m²
Počet místností 3 pokoje
Stavba Cihlová
Stav objektu Novostavba
Počet podlaží 2
Balkon Ne
Lodžie Ne
Terasa Ano
Bazén Ne
Garáž Ne
Parkování Ne
Sklep Ne
Energetická náročnost budovy C - Úsporná
Ukazatel energetické náročnosti budovy 65


Inzerát vytvořen 30.10.2025 000 16:49 (poslední úprava: 30.10.2025 000 16:53)
Chcete získat více informací o nemovitosti?
Načítání...