Řazení: od nejnovějších | od nejlevnějších  |  Nejdříve ověřené RK: ano | ne

Prodej, byt 3+1, Rotava ul. Sídliště
Byt | 3+1 | 60m²
před 2 minutami 1 900 000

pronájem bytu 2+1, 67 m2, Rudolfovská tř. České Budějovice
Byt | 2+1 | 67m²
před 5 minutami 17 000 za měsíc
zálohy na energie+ přepis el. energie a plynu na nájemníka, + vratná kauce

pokoj 16m2 Praha Hostavice
Byt | 1+kk | 16m²
před 26 minutami 9 000 za měsíc
+popl. 2000

Prodej bytu 3+1 v Ševětíně 68m2
Byt | 3+1 | 68m²
před 29 minutami 3 900 000

Nový byt 1+1 v top lokalitě Ústí nad Labem – Všebořice
Byt | 1+1 | 37m²
před 34 minutami 8 900 za měsíc
Voda na osobu 500,- Kč, Elektřina 1500,- Kč, Úklid 250,-Kč, Společná elektřina 50,- Kč/osoba.

Byt 2+kk 68m2, Újezd u Průhonic, ulice U Pramene
Byt | 2+kk | 68m²
před hodinou 16 900 za měsíc
+popl. 5000, včetně energií a internetu

Pronájem 2kk 58m2 P5 Krásná Hůrka novostavba balkón garáž sklep nezařízený
Byt | 2+kk | 58m²
před hodinou 22 000 za měsíc
+popl. 5000

OV 2+kk s balkonem, Slovanská, Slavkov u Brna
Byt | 2+kk | 73m²
před hodinou 5 999 000
vč.provize

Prodej bytu 2+1, 72m2 v centru Uherského Brodu
Byt | 2+1 | 72m²
před hodinou 5 150 000
Cena včetně odměny zprostředkovatele a právních služeb.

Pronájem bytu 2+kk s terasou, byt E.2.05, rezidence DLOUHÁ LOUKA
Byt | 2+kk | 46m²
před 2 hodinami 16 000 za měsíc
+ zálohy na energie cca 3.500,-Kč,+ vratná kauce , + přepis el.
7 700 000

Prodej bytu 2+kk/B, 71 m2, Karla Zicha, Praha, Uhříněves

Ulice Karla Zicha v Praze, okres Hlavní město Praha

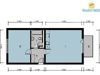
Nabízíme k prodeji prostorný slunný byt 2+kk, Karla Zicha, Praha Uhříněves. Dům je součástí bytového komplexu Zahrady Uhříněves dokončeného v roce 2007, který tvoří neprůjezdnou polouzavřenou lokalitu obytné zóny se vzrostlou zelení. Byt se nachází v prvním patře s pěkným výhledem na Uhříněveský kostel. Skládá se z prostorného obývacího pokoje s kuchyňským koutem (32 m2), ložnice (19 m2), předsíně (5 m2), koupelny (5 m2), balkonu (5 m2) a sklepu (5 m2). Kuchyňská linka je s vestavěnými spotřebiči, elektrickou troubou, mikrovlnnou troubou a myčkou na nádobí. Ložnice je orientovaná na východ, obývací pokoj s balkonem na západ. V obou místnostech je velké třídílné francouzské okno. V suterénu domu je plynový kotel, který zajišťuje jak vytápění, tak celoročně teplou vodu. V bytě je k dispozici internetové připojení optickým kabelem. Měsíční poplatky jsou cca. 5000 za měsíc (SVJ, fond oprav, teplo, teplá a studená voda). Elektřina je cca. 1000 za měsíc. V případě zájmu lze převzít od současného majitele pronájem podzemního garážového stání pod budovou (1900 za měsíc). Veškerá občanská vybavenost je v okolí. V Uhříněvsi jsou dvě základní školy, pět mateřských škol a dále obchody Lidl, Penny, Billa a Norma. V centru obce je v docházkové vzdálenosti nabídka 10 restaurací, kavárna, cukrárna, pošta. Kulturním zážitkům slouží kino a divadlo U22, pro sportovní vyžití se nabízí sokolovna, tenisové a badmintonové kurty i fotbalový klub Čechie Uhříněves, skatepark a v zimě je možné bruslit v areálu základní školy nebo na jednom ze zdejších rybníků. Dopravní dostupnost je velmi dobrá. Linka vlaku S9 jezdí do centra Prahy každou čtvrthodinu, dále je zde bus 15 min na metro C Háje a Metro A Depo Hostivař. Celkově jde o příjemné bydlení v klidné lokalitě se spoustou zeleně v okolí. Vážní zájemci volejte Po-Pá 9-18h.


Prohlídky a prodej zprostředkuje

Ing. arch. Jan Šťastna M.Sc.
E-mail: honza@realitynebe.cz
Telefon: 602222282

Aktuálně zastupuje u 9 nemovitostí


Nezávazně se zeptejte! chcete více informací o nemovitosti?

Odesláním souhlasíte s poskytnutím dat třetí straně (= realitní kanceláři). Nezbytné, abychom dotaz mohli poslat. Vaše data nezneužijeme.
Pole označené (*) jsou povinné.

Zastupující realitní kancelář

Reality NEBE
Ověřená realitní kancelář

Aktuálně má v nabídce 21 nemovitostí


Sdílejte nemovitost

Trvalý odkaz
Kontaktovat prodejce

Číslo zakázky 5317
Typ Prodej
Kategorie Byty
Podkategorie 2+kk
Užitná plocha 66 m²
Podlahová plocha 71 m²
Plocha balkonu 5 m²
Plocha sklepu 5 m²
Stavba Cihlová
Stav objektu Velmi dobrý
Vlastnictví Osobní
Počet podlaží 3
Voda Dálkový vodovod
Elektřina 230V
Plyn Plynovod
Topení Ústřední dálkové
Telekomunikace Kabelová televize
Podlaží 2
Balkon Ano
Lodžie Ne
Terasa Ne
Garáž Ne
Parkování Ne
Sklep Ano
Výtah Ne
Datum nastěhování 01.02.2026
Rok výstavby 2007
Energetická náročnost budovy C - Úsporná
Doprava Silnice, MHD, Autobus


Inzerát vytvořen 27.12.2025 000 16:55 (poslední úprava: 10.1.2026 000 14:25)
Chcete získat více informací o nemovitosti?
Načítání...