Řazení: od nejnovějších | od nejlevnějších  |  Nejdříve ověřené RK: ano | ne

Rodinný dům 4+kk, Kostelec nad Labem
Dům | Rodinný | 120m²
před 10 dny 16 950 000
16 950 000

Rodinný dům 4+kk, Kostelec nad Labem

Ulice Na Cihelně v Kostelci nad Labem, okres Mělník

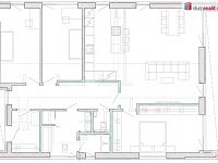
Naše společnost Vám zprostředkuje exkluzivní prodej moderní, kvalitně provedené zděné novostavby komfortního, světlého a vybaveného prostorného přízemního rodinného domu 4+kk orientovaného na jih s oplocenou zahradou v žádané lokalitě se strategickou dopravní polohou na okraji města v blízkosti Prahy a Brandýsa nad Labem - Staré Boleslavi a přivaděče na dálnice D8, D10 a D11, přičemž dojezd do Prahy je cca 20 minut. Dům disponuje třemi ložnicemi, společným prostorem s kuchyní, jídelnou a obývací pokojem se vstupem na terasu, dále koupelnou s WC a samostatným WC, chodbou, technickou místností a předsíní. Francouzská okna s trojskly jsou vybavena dálkově ovládanými venkovními izolačními bezpečnostními roletami a společně s podlahovým vytápěním plynovým kotlem snižují náklady domácnosti. Velké půdní úložné prostory a zahradní domek jistě využijete např. pro sezónní vybavení, zavazadla, materiál, zahradní nábytek a nářadí a další věci. Dům nabízí mnoho možností úprav, či doplnění podle vlastního uvážení. V dosahu je veškerá občanská vybavenost, úřad, zdravotní středisko, škola, školka, sportoviště, autobusová a vlaková doprava. V okolí domu s výhledem do krajiny je možnost vycházek například do blízkého lesa a vyjížděk cyklostezkou podél Labe. Chcete-li komfortní, pohodlné, příjemné bydlení v klidném prostředí s možností vycházek, výletů za kulturou, do přírody se všemi potřebnými službami v dosahu a v blízkosti Prahy, ozvěte se a dohodneme si prohlídku. Dozvíte se vše, co vás zajímá a profesionálně dojednáme vše potřebné k vaší spokojenosti. Ev. číslo: 653349.


Prohlídky a prodej zprostředkuje

Ing. Miroslav Klímek
E-mail: klimek@dumrealit.cz
Telefon: 775 731 505

Aktuálně zastupuje u 1 nemovitostí


Nezávazně se zeptejte! chcete více informací o nemovitosti?

Odesláním souhlasíte s poskytnutím dat třetí straně (= realitní kanceláři). Nezbytné, abychom dotaz mohli poslat. Vaše data nezneužijeme.
Pole označené (*) jsou povinné.

Zastupující realitní kancelář

Dumrealit.cz
Ověřená realitní kancelář

Aktuálně má v nabídce 823 nemovitostí


Sdílejte nemovitost

Trvalý odkaz
Kontaktovat prodejce

Číslo zakázky 653963
Typ Prodej
Kategorie Domy
Podkategorie Rodinný
Umístění objektu Okraj obce
Plocha pozemku 905 m²
Užitná plocha 120 m²
Zastavěná plocha 149 m²
Podlahová plocha 120 m²
Počet místností 4 pokoje
Stavba Cihlová
Stav objektu Novostavba
Počet podlaží 1
Topení Lokální plynové
Telekomunikace Kabelová televize
Balkon Ne
Lodžie Ne
Terasa Ano
Bazén Ne
Garáž Ne
Parkování Ano
Míst k parkování 4
Sklep Ne
Výtah Ne
Energetická náročnost budovy B - Velmi úsporná
Ukazatel energetické náročnosti budovy 113


Inzerát vytvořen 20.1.2026 000 15:31 (poslední úprava: 25.1.2026 000 09:08)
Chcete získat více informací o nemovitosti?
Načítání...