Řazení: od nejnovějších | od nejlevnějších  |  Nejdříve ověřené RK: ano | ne

(N391) Prestižní kancelář na TOP adrese v centru Nového Jičína (n391)
Komerční | Kanceláře | 66m²
před 13 dny 18 370 za měsíc
+ 3340 zálohy na energie

ŠTĚDRONÍN - penzion u Orlického jezera
Komerční | Ubytování | 1540m²
před 13 dny 15 350 000
včetně provize

Nebytové skladovací, výrobní prostory 241m2 + 45m2 kancelář + soc. zařízení a parking
Komerční | Výroba | 322m²
před 14 dny 70 000 za měsíc
+ provize RK ve výši jednoho měsíčního nájmu + DPH

Průmyslová hala 5 300 m² s výškou 15 m | Veselí nad Moravou
Komerční | Výroba | 5700m²
před 14 dny

Komerční prostory v obci Drnovice, okr. Zlín, CP 762 m2
Komerční | Obchodní prostory | 342m²
před 14 dny 8 900 000

Pronájem nových skladových prostor v Otrokovicích 280m2
Komerční | Sklady | 280m²
před 14 dny

Prodej obchodního prostoru, 980 m2, Veselí nad Moravou
Komerční | Obchodní prostory | 980m²
před 14 dny 10 200 000

Komerční areál s dvěma halami a pozemkem o výměře 11.709m2 v Netolicích
Komerční | Sklady | 11709m²
před 14 dny 2 000 za m²
154 940 za měsíc

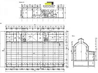
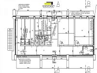
Pronájem skladu, výrobních prostor 1542 m², Kladno

Ulice Dubská v Kladně, okres Kladno

Pronájem skladu, výrobních prostor Kladno. V zastoupení majitele a bez provize nabízíme skladové nebo výrobní prostory k pronájmu o velikosti 1542 m². Samostatně stojící hala se nachází v blízkosti dálnic D6, D7 a Pražského okruhu D0, s výbornou dostupností na Letiště Václava Havla Praha. - k dispozici od 05/2026 po rekonstrukci - skladová / výrobní hala: 1437 m² - kanceláře a sociální zázemí: 105 m² - suterén o velikosti 306 m² (zdarma) - nosnost podlahy 10 t/m² - možnost osazení mostové jeřábu o nosnosti 10t - 3x přímý vjezd - dostatečné parkovací plochy - v blízkosti Letiště Václava Havla Praha (15 km) Cena nájmu je Kč 90,-/m²/měsíc + kanceláře a sociální zázemí Kč 200,-/m²/měsíc + DPH. Pro více informací nás kontaktujte. V případě zájmu vám rádi zajistíme prohlídku nemovitosti.


Prohlídky či pronájem zprostředkuje

David Machač
E-mail: machac@contentreality.cz
Telefon: +420 720 020 656

Aktuálně zastupuje u 210 nemovitostí


Nezávazně se zeptejte! chcete více informací o nemovitosti?

Odesláním souhlasíte s poskytnutím dat třetí straně (= realitní kanceláři). Nezbytné, abychom dotaz mohli poslat. Vaše data nezneužijeme.
Pole označené (*) jsou povinné.

Zastupující realitní kancelář

CONTENT REALITY s.r.o.

Aktuálně má v nabídce 645 nemovitostí


Sdílejte nemovitost

Trvalý odkaz
Kontaktovat pronajímatele
Tip: více fotografií k dispozici u makléře

Číslo zakázky 6693
Typ Pronájem
Kategorie Komerční
Podkategorie Sklady
Užitná plocha 1,542 m²
Plocha kanceláří 1,542 m²
Stavba Skeletová
Stav objektu Velmi dobrý
Garáž Ne
Parkování Ano
Datum nastěhování 05.05.2026
Energetická náročnost budovy G - Mimořádně nehospodárná


Inzerát vytvořen 26.1.2026 000 13:00 (poslední úprava: 11.5.2026 000 15:56)
Chcete získat více informací o nemovitosti?
Načítání...