Řazení: od nejnovějších | od nejlevnějších  |  Nejdříve ověřené RK: ano | ne

K pronájmu, komerční prostor v pasáži, Náměstí Přemysla Otakara II., České Budějovice
Komerční | Obchodní prostory | 9m²
před 9 měsíci 10 000 za měsíc
+popl. 500, Více informací Vám poskytne realitní makléř Tomáš Pelda.

prodej pozemku v Českých Budějovicích 6
Pozemek | Louky | 460m²
před 9 měsíci 874 000

prodej pozemku v Českých Budějovicích 6
Pozemek | Zahrady | 460m²
před 9 měsíci 1 900 za m²

prodej apartmánu 4+kk, 120m2, Harrachov - Nový Svět
Byt | 4+kk | 105m²
před 9 měsíci 15 385 600
BENEFIT - Nová kuchyňská linka včetně spotřebičů, garážové a povrchové parkovací stání, ski-box, prá

prodej apartmánu 2+kk, 67m2, Harrachov - Nový Svět
Byt | 2+kk | 56m²
před 9 měsíci 8 982 000

prodej apartmánu 1+kk, 40,4m2, Harrachov - Nový Svět
Byt | 1+kk | 31m²
před 9 měsíci 6 131 800
Včetně ski-boxu a parkovacího stání, právního realitního a kompletního servisu.

Prodej pozemku k bydlení, Borotín - Libenice
Pozemek | Bydlení | 1913m²
před 9 měsíci 3 800 000
- cena včetně realitních služeb

pronájem komerčního prostoru, 45m2 + terasa, Harrachov
Komerční | Obchodní prostory | 45m²
před 9 měsíci 22 000 za měsíc
Vratná kauce 3 x měsíční nájem. Provize RK 1 x měsíční nájem.

Pronájem prostor kanceláře METEORCENTRE o 15m2 až 760m2 v Karlíně, metro stanice Křižíkova
Komerční | Kanceláře | 360m²
před 9 měsíci 393 za m²/měsíc
5 850 000

Byt 5+1, ul. Jungmannova

Ulice Jungmannova v Teplicích, okres Teplice

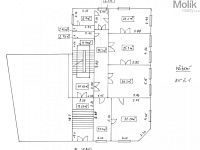
Nabízíme na prodej byt 5+1 v osobním vlastnictví. Byt se nachází v přízemí (1.NP) historického bytového domu v lázeňské části Teplic, ul. Jungmannova o výměře 164 m2. Byt je v původním stavu. Určený k rekonstrukci. Dům prochází rozsáhlou rekonstrukcí, včetně nové fasády, která bude dokončena do 6 měsíců (viz vizualizace). Veškeré náklady na rekonstrukci jsou již zahrnuty v ceně a hradí je současný majitel, nový majitel se na nich finančně nepodílí. Nastěhování je možné ihned. V tomto domě je k prodeji více bytových jednotek. Veškerá občanská vybavenost v blízkosti. Možno financovat jinou nemovitostí na protiúčet (dům, byt, zahrada, garáž). Více informací u uvedeného makléře 7 dní v týdnu.


Prohlídky a prodej zprostředkuje

Radek Molík
E-mail: tovor12@gmail.com
Telefon: +420 777090011
Telefon: +420 777090011

Aktuálně zastupuje u 99 nemovitostí


Nezávazně se zeptejte! chcete více informací o nemovitosti?

Odesláním souhlasíte s poskytnutím dat třetí straně (= realitní kanceláři). Nezbytné, abychom dotaz mohli poslat. Vaše data nezneužijeme.
Pole označené (*) jsou povinné.

Zastupující realitní kancelář

Molík reality s.r.o.

Aktuálně má v nabídce 368 nemovitostí


Sdílejte nemovitost

Trvalý odkaz
Kontaktovat prodejce
Tip: více fotografií k dispozici u makléře

Číslo zakázky MR14724
Typ Prodej
Provize včetně provize
Právní servis včetně právního servisu
Kategorie Byty
Podkategorie 5+1
Užitná plocha 164 m²
Podlahová plocha 164 m²
Stavba Cihlová
Stav objektu Dobrý
Bezbariérový Ne
Vlastnictví Osobní
Počet podlaží 4
Podlaží 1
Balkon Ne
Lodžie Ne
Terasa Ne
Garáž Ne
Parkování Ne
Sklep Ne
Energetická náročnost budovy G - Mimořádně nehospodárná (neuvedeno)


Inzerát vytvořen 29.1.2026 000 17:11 (poslední úprava: 19.3.2026 000 08:25)
Chcete získat více informací o nemovitosti?
Načítání...