Řazení: od nejnovějších | od nejlevnějších  |  Nejdříve ověřené RK: ano | ne

PRODEJ STAVEBNÍ PARCELY 1.081 M2, LIPÍ U ČESKÝCH BUDĚJOVIC
Pozemek | Bydlení | 1081m²
před 2 hodinami 5 499 000

PRODEJ STAVEBNÍ PARCELY 1.316 M2, LIPÍ U ČESKÝCH BUDĚJOVIC
Pozemek | Bydlení | 1081m²
před 2 hodinami 6 499 000
5 499 000

PRODEJ STAVEBNÍ PARCELY 1.081 M2, LIPÍ U ČESKÝCH BUDĚJOVIC

Lipí, okres České Budějovice

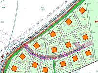
Nabízíme k prodeji stavební parcelu o výměře 1.081 m2 v klidné a okrajové části obce Lipí u Českých Budějovic. Stavební parcela se nachází v nově vzniklé lokalitě 14 stavebních pozemků okrajové části obce. Pozemek je kompletně zasíťovaný (elektřina 220/380 V, plyn, voda - obecní, kanalizace – obecní, internet ) a přístupný z obecní komunikace. Tato nově vzniklá lokalita obce Lipí je vzdálena 11 km od centra krajského města České Budějovice. Při plánování této výstavby byl kladen důraz na zachování prestiže a soukromí této lokality s důrazem na vysoký komfort bydlení. V obci Lipí se nachází obecní úřad, mateřská školka, pohostinství, zastávka linkového autobusu). Krajské město České Budějovice s veškerou občanskou vybaveností je vzdáleno 11 km. Další dotazy Vám rádi zodpovíme v naší kanceláři. Doporučujeme osobní prohlídku.


Prohlídky a prodej zprostředkuje

Radek Kujal
E-mail: kujal@rondocb.cz
Telefon: 603 526 962

Aktuálně zastupuje u 24 nemovitostí


Nezávazně se zeptejte! chcete více informací o nemovitosti?

Odesláním souhlasíte s poskytnutím dat třetí straně (= realitní kanceláři). Nezbytné, abychom dotaz mohli poslat. Vaše data nezneužijeme.
Pole označené (*) jsou povinné.

Zastupující realitní kancelář

RONDO s.r.o.
Ověřená realitní kancelář

Aktuálně má v nabídce 64 nemovitostí


Sdílejte nemovitost

Trvalý odkaz
Kontaktovat prodejce

Číslo zakázky 5023-R3
Typ Prodej
Provize včetně provize
Právní servis včetně právního servisu
Kategorie Pozemky
Podkategorie Bydlení
Umístění objektu Klidná část obce
Plocha pozemku 1,081 m²
Nízkoenergetický Ne
Stav objektu Velmi dobrý
Bezbariérový Ne
Voda Dálkový vodovod
Elektřina 230V
Plyn Plynovod
Odpad Veřejná kanalizace
Balkon Ne
Lodžie Ne
Terasa Ne
Garáž Ne
Parkování Ne
Sklep Ne
Energetická náročnost budovy G - Mimořádně nehospodárná (neuvedeno)
Doprava Silnice, Autobus
Komunikace Asfaltová
Zástavba Obytná


Inzerát exportován programem: realitní správce 18.2.2026 000 09:36 (poslední úprava: 23.2.2026 000 14:03)
Chcete získat více informací o nemovitosti?
Načítání...