Řazení: od nejnovějších | od nejlevnějších  |  Nejdříve ověřené RK: ano | ne

Obchodní prostor 14,5m2, Brno - Hl. nádraží
Komerční | Obchodní prostory | 14m²
před měsícem 50 315 za měsíc
(+ DPH, +zálohy na energie, služby a správu budovy)

Pronájem moderního komerčního areálu – sklady, výroba a kanceláře
Komerční | Kanceláře | 600m²
před měsícem 300 000 za měsíc

Pronájem moderního komerčního areálu – sklady, výroba a kanceláře
Komerční | Sklady | 1400m²
před měsícem 300 000 za měsíc

Pronájem komerčního prostoru - koktejlbaru, 16. P, 214 m2, Majdalenky, Brno - Lesná
Komerční | Obchodní prostory | 214m²
před 3 měsíci 50 000 za měsíc
+ voda, elektřina se přepisuje na nájemce

Prodej nebytového prostoru 87m2 Brno - Žabovřesky
Komerční | Obchodní prostory | 87m²
před 5 měsíci 7 490 000
na cenu se poptejte u makléře

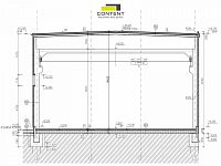
Pronájem výrobních prostor 1898 m², Brno

Ulice Zaoralova v Brnu; Brně, okres Brno-město

Pronájem výrobních prostor se zázemím v Brně Líšni. V zastoupení majitele a bez provize nabízíme výrobní prostory umístěně v nově vznikajícím výrobně - logistickém parku v Brně. - k nastěhování Q4/2026 - výrobní hala o půdorysné ploše 1898 m² - instalované patky na mostový jeřáb o nosnosti 5 tun - světlá výška 10 m, pojezdová dráha je ve výšce 8 metrů - bezprašné podlahy s nosností 5t/m² - 2x Drive IN pro možnost vjezdu nákladních aut do haly - všechny IS k dispozici - Příkon elektřiny 3x240A - kanceláře, showroom a sociální zázemí o celkové velikosti až 894 m² - vhodné jako sídlo společnosti - výborná dostupnost pro osobní i nákladní dopravu - dálnice D1 cca 3km - MHD a občanská vybavenost je v docházkové vzdálenosti cca. 360 m Cena je individuální dle konkrétních podmínek smlouvy. Pro více informací nás kontaktujte.


Prohlídky či pronájem zprostředkuje

Martin Nenička
E-mail: nenicka@contentreality.cz
Telefon: +420739314952

Aktuálně zastupuje u 113 nemovitostí


Nezávazně se zeptejte! chcete více informací o nemovitosti?

Odesláním souhlasíte s poskytnutím dat třetí straně (= realitní kanceláři). Nezbytné, abychom dotaz mohli poslat. Vaše data nezneužijeme.
Pole označené (*) jsou povinné.

Zastupující realitní kancelář

CONTENT REALITY s.r.o.

Aktuálně má v nabídce 631 nemovitostí


Sdílejte nemovitost

Trvalý odkaz
Kontaktovat pronajímatele
Tip: více fotografií k dispozici u makléře

Číslo zakázky 7175
Typ Pronájem
Kategorie Komerční
Podkategorie Výroba
Umístění objektu Rušná část obce
Užitná plocha 1,898 m²
Plocha kanceláří 1,898 m²
Stavba Skeletová
Stav objektu Novostavba
Garáž Ne
Parkování Ano
Datum nastěhování 01.09.2026
Energetická náročnost budovy C - Úsporná


Inzerát vytvořen 31.3.2026 000 12:32 (poslední úprava: 16.4.2026 000 06:42)
Chcete získat více informací o nemovitosti?
Načítání...