• 1
  • 2
Řazení: od nejnovějších | od nejlevnějších  |  Nejdříve ověřené RK: ano | ne

Byt 3+1 80m/2 Českobratrská ulice -Teplice
Byt | 3+1 | 80m²
před 2 hodinami 3 940 000
  • 1
  • 2
3 940 000

Byt 3+1 80m/2 Českobratrská ulice -Teplice

Ulice Českobratrská v Teplicích, okres Teplice

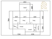
Nabízíme k prodeji prostorný byt 3+1, který se nachází v atraktivní lokalitě v ulici Českobratrská v Teplicích. Byt najdete ve zvýšeném přízemí s vlastním vchodem. Byt je dispozičně řešen třemi neprůchozími pokoji, kuchyní, koupelnou s vanou a samostatným WC, balkonem o rozloze 8 m/2 ideální pro posezení a nerušený odpočinek. K bytu náleží sklep a možnost využití pozemku za domem pro letní grilování. Podlahy jsou pokryty linoleem, okna jsou dřevěná, vytápění a ohřev vody je zajištěn plynovým kotlem. V domě se nachází 8 bytových jednotek. Byt je určen k rekonstrukci dle vlastních představ budoucího majitele. Ideální jako rodinné bydlení nebo na investici. V blízkosti se nachází veškerá občanská vybavenost s dobrou dopravní dostupností. Pro více informací nebo domluvení prohlídky mne neváhejte kontaktovat.


Prohlídky a prodej zprostředkuje

Novotná Hana
E-mail: novotna@g-plusreality.cz
Telefon: 723 759 794

Aktuálně zastupuje u 6 nemovitostí


Nezávazně se zeptejte! chcete více informací o nemovitosti?

Odesláním souhlasíte s poskytnutím dat třetí straně (= realitní kanceláři). Nezbytné, abychom dotaz mohli poslat. Vaše data nezneužijeme.
Pole označené (*) jsou povinné.

Zastupující realitní kancelář

G-Plus realitní kancelář
Ověřená realitní kancelář

Aktuálně má v nabídce 58 nemovitostí


Sdílejte nemovitost

Trvalý odkaz
Kontaktovat prodejce

Číslo zakázky 618
Typ Prodej
Poplatky včetně poplatků
Cena včetně DPH
Provize včetně provize
Právní servis včetně právního servisu
Kategorie Byty
Podkategorie 3+1
Umístění objektu Klidná část obce
Užitná plocha 80 m²
Podlahová plocha 80 m²
Nízkoenergetický Ne
Stavba Smíšená
Stav objektu Dobrý
Bezbariérový Ne
Vlastnictví Osobní
Počet podlaží 4
Počet podzemních podlaží 1
Voda Dálkový vodovod
Elektřina 230V
Plyn Plynovod
Odpad Veřejná kanalizace
Topení Lokální plynové
Telekomunikace Internet
Podlaží 1
Balkon Ano
Lodžie Ne
Terasa Ano
Garáž Ne
Parkování Ano
Míst k parkování 5
Sklep Ano
Výtah Ne
Energetická náročnost budovy G - Mimořádně nehospodárná
Doprava Vlak, Dálnice, Silnice, MHD, Autobus
Komunikace Betonová, Asfaltová


Inzerát exportován programem: realitní správce 24.4.2026 000 20:30
Chcete získat více informací o nemovitosti?
Načítání...