Řazení: od nejnovějších | od nejlevnějších  |  Nejdříve ověřené RK: ano | ne

Pronájem, byt, 2+kk, 52 m2, ul. Plzeňská, Praha 5
Byt | 2+kk | 52m²
před 2 měsíci 35 000 za měsíc

Pronájem, byt, 2+kk, 50 m2, ul. Plzeňská, Praha 5
Byt | 2+kk | 50m²
před měsícem 35 000 za měsíc
+ služby

Pronájem, byt, 2+kk, 45 m2, ul. Holečkova, Praha 5
Byt | 2+kk | 45m²
před 2 měsíci 38 000 za měsíc

Pronájem, byt, 2+kk, 80 m2, ul. Kafkova, Praha 5
Byt | 2+kk | 80m²
před měsícem 39 000 za měsíc

Byt 2+1 se dvěmi terasami V Londýnské ulici.
Byt | 2+1 | 90m²
před 3 měsíci 39 900 za měsíc

Byt 2+1 se dvěmi terasami V Londýnské ulici.
Byt | 2+1 | 90m²
před 6 měsíci 40 000 za měsíc

pronájem bytu 3+kk, 140 m2, ul. Tůmova, Praha 5 - Košíře
Byt | 3+kk | 140m²
před 26 dny 40 000 za měsíc
+ provize RK

Pronájem bytu 3kk/T 110m2 Zborovská Praha 5 Smíchov
Byt | 3+kk | 93m²
před 10 hodinami 40 000 za měsíc
+ poplatky 3.700 Kč + elektřina 1.000+ plyn 3.000 Kč

Pronájem 4+1 105m2 P8 Libeň Palmovka Turnovská po rekonstrukci nezařízeno
Byt | 4+1 | 105m²
před 4 dny 40 000 za měsíc
+popl. 700, +elektřina

Pronájem, byt, 3+kk, 74 m2, ul. U libeňského pivovaru, Praha 8 Libeň
Byt | 3+kk | 74m²
před 16 dny 41 000 za měsíc
28 000 za měsíc
+ poplatky + vratná kauce + provize RK

Pronájem prostorného bytu 3+kk, 71 m2 + sklep

Ulice Saratovská v Praze, okres Hlavní město Praha

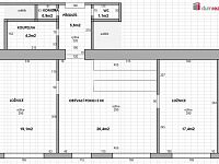
Nabízíme pronájem prostorného velmi příjemného tichého a světlého bytu o velikosti 3+kk s komorou a sklepem, I. NP velmi dobře udržovaného cihlového domu v klidné ulici v Praze 10 - Strašnice, 3 minuty chůze od stanice metra Strašnická, TRAM, BUS. Dispozičně velký obývací pokoj téměř 26 m², 2x neprůchozí ložnice 19 a 17 m², předsíň 6 m², koupelna 4 m², WC zvlášť a komora. Byt prošel rekonstrukcí (nově rozvody, vytápění, nová okna, sanita, kuchyň), je částečně vybaven a nabízí možnost dostatečného množství úložného prostoru. V přesíni je vybudovaný podhled s prostorem pro uložení např. lyží a jiných sezóních věcí. Nově byla vybudována koupelna a WC, v obývacím pokoji instalována nově kuchyňská linka s barovým pultem včetně spotřebičů. V komoře je k dispozici pračka se sušičkou. V bytě dále zůstává sedací souprava se stolem a skříně. Podlahy bytu tvoří dlažba a dřevěné parkety, byt je čistě vymalován. Vytápění a ohřev vody zajišťuje nový plynový kombinovaný kotel, vytápění je řízeno úsporným systémem na dálkově (telefonem) ovládané čidlo (termostat). Dům stojí mimo hlavní ulici, takže byt je opravdu tichý. Lokalita nabízí veškerou infrastrukturu, obchody, pošta, restaurace, kavárny, MŠ a ZŠ, kulturní vyžití, perfektní dopravní dostupnost ve dne i v noci, a v neposlední řadě opravdu velké množství zeleně. V blízkosti překrásné rozlehlé parky Gutovka a Malešický park nabízející nejen posezení na lavičkách, dětská hřiště, občerstvení v hospůdkách, ale i rozsáhlé sportovní aktivity, příjemné procházky nabízí i menší parčíky okolo domu nebo vilová zástavba se vzrostlými zahradami. Byt je volný, připravený k nastěhování. Nájem 28 tis. Kč měs, vyúčtovatelné zálohy pro rodinu cca 1.500,- Kč/měs + el. a plyn na nájemce v částce cca 3.500,- Kč/měs (včetně vytápění) + vratná kauce a provize RK . Podmínkou nekuřáci !!! Ev. číslo: 656079.


Prohlídky či pronájem zprostředkuje

Iveta Palacká
E-mail: palacka@dumrealit.cz
Telefon: 721 545 545

Aktuálně zastupuje u 2 nemovitostí


Nezávazně se zeptejte! chcete více informací o nemovitosti?

Odesláním souhlasíte s poskytnutím dat třetí straně (= realitní kanceláři). Nezbytné, abychom dotaz mohli poslat. Vaše data nezneužijeme.
Pole označené (*) jsou povinné.

Zastupující realitní kancelář

Dumrealit.cz
Ověřená realitní kancelář

Aktuálně má v nabídce 961 nemovitostí


Sdílejte nemovitost

Trvalý odkaz
Kontaktovat pronajímatele

Číslo zakázky 656693
Typ Pronájem
Kategorie Byty
Podkategorie 3+kk
Užitná plocha 71 m²
Podlahová plocha 71 m²
Stavba Cihlová
Stav objektu Velmi dobrý
Vlastnictví Osobní
Vybavení Ano
Počet podlaží 4
Podlaží 1
Balkon Ne
Lodžie Ne
Terasa Ne
Garáž Ne
Parkování Ne
Sklep Ano
Energetická náročnost budovy C - Úsporná


Inzerát vytvořen 28.4.2026 000 17:59
Chcete získat více informací o nemovitosti?
Načítání...