Řazení: od nejnovějších | od nejlevnějších  |  Nejdříve ověřené RK: ano | ne
Podej samostatně stojícího RD 5+kk s garáží a zahradou
Dům | Rodinný | 210m²
před 6 dny 29 400 000
včetně provize RK
Prodej novostavby viladomu, Ochoz u Brna
Dům | Rodinný | 205m²
před měsícem 29 900 000
vč. provize RK
Prodej novostavby RD 5+kk s dvojgaráží a velkou zahradou v Ochozu u Brna.
Dům | Rodinný | 225m²
před měsícem 38 800 000
včetně provize RK
38 800 000
včetně provize RK

Prodej novostavby RD 5+kk s dvojgaráží a velkou zahradou v Ochozu u Brna.

Ulice Pod Skalkou v Ochozi u Brna, okres Brno-venkov

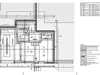
Dovolujeme si vám zprostředkovat koupi novostavby viladomu v rezidenční lokalitě Pod Skalkou v Ochozu u Brna. Jedná se o třetí etapu výstavby, která zahrnuje čtyři rodinné domy v nadstandardním provedení. Dvoupodlažní dům s užitnou plochou 225 m2, zasazený do jižního svahu, je obklopen pozemkem s celkovou výměrou 1914 m2. 1. PP - technické: zádveří, vstupní hala, WC, technická místnost, pracovna, garáž pro dva automobily; 1. NP obytné: hala, obývací pokoj s kuchyňským koutem (57 m2, v obytné části s výškou stropu 4,5 m), dva pokoje (14,5 m2;14,5 m2), ložnice s vlastní šatnou, koupelnou a toaletou (24 m2), koupelna společná s toaletou, vstup na dvě terasy a do zahrady. Technický popis: základové pasy + ŽB základová deska, svislé konstrukce 1.PP btb tvarovky, 1.NP keramické tvarovky, strop 1.PP ŽB monolitická deska, strop 1.NP řešen jako součást konstrukce dřevěného krovu, střecha sedlová s keramickou krytinou, omítaná fasáda s částečně dřevěným obkladem ze sibiřského modřínu, provedená v zateplovacím systému ETICS, výplně otvorů hliníkové, velkoplošná skla, předokenní žaluzie. Primárním zdrojem tepla je rekuperační jednotka s integrovaným tepelným čerpadlem s výkonem až 1,3 kW, sekundárním zdrojem tepla je ve všech místnostech elektrické podlahové topení, interiérové schodiště zděné Ytong, dešťová voda svedena do akumulační jímky s bezpečnostním přepadem do vsakovacích bloků. V ceně domu je zahrnuta chytrá domácnost SOMFY, díky které bude možné ovládat žaluzie, garážová vrata, regulaci topení a videotelefon, zabezpečovací systém s napojením dveřních magnetů a sensorů pohybu, venkovní kamery. V ložnici, dětských pokojích a obývacím prostoru budou integrovány klimatizační jednotky. Dům bude prodáván ve stupni dokončení and #34;White Walls and #34; (bez podlahových krytin, obkladů, zařizovacích předmětů, dveří). Venkovní schodiště propojuje úroveň vjezdu a zahrady v úrovní 1.NP. Celý pozemek bude oplocen plotovými 3D panely , uliční oplocení bude tvořit opěrná zeď, zpevněné plochy budou zajišťovat jedno odstavné a jedno parkovací místo. V současné době je dům ve fázi hrubé stavby. V lokalitě Pod Skalkou se k prodeji nabízí i další vila domy a RD, více informací v RK. Obec Ochoz u Brna leží na okraji CHKO Moravský kras v těsné blízkosti lesů, ve vzdálenosti 7 km od hranice městské části Brno - Líšeň. Občanská vybavenost: Česká pošta, praktický lékař pro dospělé, ZŠ a MŠ, Lesní mateřská škola LESINKA, Restaurace Na kovárně, pension Ochozzerie, Bistro - areál Svazarmu, Restaurace Verona, zájmové organizace Skaut, TJ. Dostupnost IDS: autobus 201 - Židenice nádraží, Jedovnice; autobus č. 210 - Hostěnice, Bílovice nad Svitavou (žel. stanice).


Prohlídky a prodej zprostředkuje

Ing. Irena Pavlišová
E-mail: pavlisova@fiedlerreality.cz
Telefon: +420 739208107
Telefon: +420 739208107

Aktuálně zastupuje u 7 nemovitostí


Nezávazně se zeptejte! chcete více informací o nemovitosti?

Odesláním souhlasíte s poskytnutím dat třetí straně (= realitní kanceláři). Nezbytné, abychom dotaz mohli poslat. Vaše data nezneužijeme.
Pole označené (*) jsou povinné.

Zastupující realitní kancelář

FIEDLER REALITY s.r.o.

Aktuálně má v nabídce 13 nemovitostí


Sdílejte nemovitost

Trvalý odkaz
Kontaktovat prodejce
Tip: více fotografií k dispozici u makléře

Číslo zakázky 18539
Typ Prodej
Cena včetně DPH
Kategorie Domy
Podkategorie Rodinný
Plocha pozemku 1,914 m²
Plocha zahrady 1,726 m²
Užitná plocha 225 m²
Zastavěná plocha 188 m²
Podlahová plocha 205 m²
Počet místností Atypický
Stavba Cihlová
Stav objektu Novostavba
Bezbariérový Ne
Počet podlaží 2
Voda Dálkový vodovod
Odpad Veřejná kanalizace
Balkon Ne
Lodžie Ne
Terasa Ne
Bazén Ne
Garáž Ne
Parkování Ne
Míst k parkování 1
Sklep Ne
Energetická náročnost budovy C - Úsporná
Zástavba Obytná


Inzerát vytvořen 17.1.2025 000 02:43 (poslední úprava: 9.10.2025 000 15:51)
Chcete získat více informací o nemovitosti?
Načítání...