Řazení: od nejnovějších | od nejlevnějších  |  Nejdříve ověřené RK: ano | ne

Prodej RD 4+kk Letošov
Dům | Rodinný | 90m²
před 6 měsíci 8 031 000
Včetně kompletních služeb RK
8 031 000
Včetně kompletních služeb RK

Prodej RD 4+kk Letošov

Nesovice, okres Vyškov

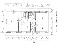
ALLIN-REALITY.CZ v exkluzivním zastoupení majitele nabízí k prodeji rodinný dům o dispozici 4+kk s pozemky 534 m2, v Letošově, okres Vyškov. Nemovitost má 1 nadzemní podlaží. V 1.NP rodinného domu se nachází předsíň, obývací pokoj s kuchyňským koutem, koupelna, samostatná toaleta a 3 pokoje. Obytná plocha domu je 89,71 m2. K rodinnému domu náleží „mlat“. Dům je nyní využíván jako sídlo společnosti, mlat slouží k uskladnění stavebního materiálu. V případě požadavku klienta je možné mlat demolovat pro vytvoření zahrady. Parkovaní vozu je možné na pozemku před domem. Dům byl kolaudován v roce 2008. Technické parametry : Použitý materiál Ytong, 15 cm zateplení. Střecha plechová. Pro vytápění a ohřev TUV slouží plynový kotel (v obývacím pokoji komín, možné využití pro krbová kamna). Okna plastová dvojskla opatřena horizontálními žaluziemi. Podlahy pvc a dlažba. Dům je vybaven kuchyňskou linkou včetně plynového sporáku. Rodinný dům je napojen na všechny inženýrské sítě – veřejný vodovod, plynovod, kanalizaci a elektřinu. Internet a TV je O2. V případě zájmu o demolici mlatu, kterou zajistí prodávající, bude kupní cena navýšena o 500 000 Kč. Letošov (Nesovice) má výbornou občanskou vybavenost. V obci pošta, obecní úřad, obchod, praktický lékař, kulturní zařízení. Dojezdová vzdálenost do Brna 35 min autem, do Vyškova přibližně 20 minut. V současné době je nemovitost pronajata. V případě zájmu o prohlídku nás neváhejte kontaktovat. S financováním nemovitosti rádi bezplatně pomůžeme. PENB – probíhá zpracování, dočasně uvedena třída G.


Prohlídky a prodej zprostředkuje

Kateřina Sedláčková
E-mail: sedlackovakaterina@email.cz
Telefon: 731407412

Aktuálně zastupuje u 16 nemovitostí


Nezávazně se zeptejte! chcete více informací o nemovitosti?

Odesláním souhlasíte s poskytnutím dat třetí straně (= realitní kanceláři). Nezbytné, abychom dotaz mohli poslat. Vaše data nezneužijeme.
Pole označené (*) jsou povinné.

Zastupující realitní kancelář

All In Reality
Ověřená realitní kancelář

Aktuálně má v nabídce 16 nemovitostí


Sdílejte nemovitost

Trvalý odkaz
Kontaktovat prodejce

Číslo zakázky 2025-05-27-1
Typ Prodej
Cena včetně DPH
Provize včetně provize
Právní servis včetně právního servisu
Kategorie Domy
Podkategorie Rodinný
Umístění objektu Klidná část obce
Plocha pozemku 534 m²
Plocha zahrady 534 m²
Užitná plocha 90 m²
Počet místností 4 pokoje
Nízkoenergetický Ne
Stavba Cihlová
Stav objektu Velmi dobrý
Bezbariérový Ne
Počet podlaží 1
Voda Dálkový vodovod
Elektřina 230V
Plyn Plynovod
Odpad Veřejná kanalizace
Topení Lokální plynové
Balkon Ne
Lodžie Ne
Terasa Ne
Bazén Ne
Garáž Ne
Parkování Ne
Sklep Ne
Výtah Ne
Rok kolaudace 2008
Energetická náročnost budovy G - Mimořádně nehospodárná
Doprava MHD
Komunikace Asfaltová


Inzerát exportován programem: realitní správce 29.5.2025 000 16:33 (poslední úprava: 3.6.2025 000 15:56)
Chcete získat více informací o nemovitosti?
Načítání...