Řazení: od nejnovějších | od nejlevnějších  |  Nejdříve ověřené RK: ano | ne

Prodej bytu 3+1 s garáží v domě v Hluku
Dům | Rodinný | 81m²
před měsícem 1 990 000
Cena včetně provize RK.
1 990 000
Cena včetně provize RK.

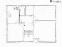
Prodej bytu 3+1 s garáží v domě v Hluku

Ulice Na Přídělech v Hluku, okres Uherské Hradiště

Nabízíme exkluzivně k prodeji byt 3+1 s garáží o celkové ploše 81 m² v domě se dvěma bytovými jednotkami v obci Hluk. Byt má tři neprůchozí, samostatné pokoje. Součástí bytové jednotky je garáž, sklep a také polovina půdního prostoru. Byt je v původním stavu a je určen k rekonstrukci. Dům je v přízemí zděný, další podlaží jsou řešena jako montovaná dřevostavba. V domě se nacházejí pouze dva byty. Za domem je navíc k užívání polovina zahrady. Nemovitost je vhodná i jako zajímavá investice k pronájmu. V případě zájmu Vám rádi zajistíme financování. Byt je k dispozici ihned. Doporučujeme prohlídku. Pro více informací kontaktujte realitního makléře. Ev. číslo: 652435.


Prohlídky a prodej zprostředkuje

Tomáš Hlaváček
E-mail: t.hlavacek@dumrealit.cz
Telefon: 739 308 075
Telefon: 739 308 075

Aktuálně zastupuje u 13 nemovitostí


Nezávazně se zeptejte! chcete více informací o nemovitosti?

Odesláním souhlasíte s poskytnutím dat třetí straně (= realitní kanceláři). Nezbytné, abychom dotaz mohli poslat. Vaše data nezneužijeme.
Pole označené (*) jsou povinné.

Zastupující realitní kancelář

Dumrealit.cz
Ověřená realitní kancelář

Aktuálně má v nabídce 842 nemovitostí


Sdílejte nemovitost

Trvalý odkaz
Kontaktovat prodejce

Číslo zakázky 653049
Typ Prodej
Provize včetně provize
Kategorie Domy
Podkategorie Rodinný
Plocha pozemku 78 m²
Užitná plocha 81 m²
Zastavěná plocha 78 m²
Podlahová plocha 81 m²
Počet místností 3 pokoje
Stavba Smíšená
Stav objektu Před rekonstrukcí
Počet podlaží 2
Balkon Ne
Lodžie Ne
Terasa Ne
Bazén Ne
Garáž Ano
Parkování Ano
Míst k parkování 2
Sklep Ano
Energetická náročnost budovy G - Mimořádně nehospodárná


Inzerát vytvořen 10.9.2025 000 13:57 (poslední úprava: 21.10.2025 000 17:06)
Chcete získat více informací o nemovitosti?
Načítání...