Řazení: od nejnovějších | od nejlevnějších  |  Nejdříve ověřené RK: ano | ne

Prodej domu Vranovice-Kelčice
Dům | Rodinný | 150m²
před měsícem 1 990 000
Neplatíte provizi RK
1 990 000
Neplatíte provizi RK

Prodej domu Vranovice-Kelčice

Vranovice-Kelčice, okres Prostějov

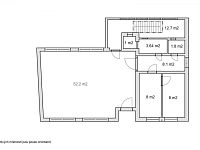
Nabízíme k prodeji menší rodinný dům s pozemkem o výměře 407 m2. Nemovitost je koncipována jako bydlení 1+1 s dílnou (dílna 52 m2), RD částečně podsklepen, ve 2.NP půdní prostor. V katastru nemovitostí objekt veden jako rodinný dům, pozemek stavební. Po splnění podmínek lze k rekonstrukci či nové výstavbě RD čerpat dotační program nová zelená úsporám (oprav dům po babičce) až do výše 1.500.000,-Kč. Lze také vyřídit zvýhodněný úvěr až do výše dvojnásobku dotace bez zajištění. Na stavebním úřadě předjednána i možnost výstavby nového RD. Možné využití jako chalupa, podnikání se zázemím, po úpravách na trvalé bydlení. Na pozemku kůlna, přístřešek pro případné parkování vozu. Připojena voda, elektřina, vnitřní septik s přepadem napojen na obecní kanalizaci. Plyn není připojen (před domem v obecní komunikaci), topení na tuhá paliva. Stavba přibližně z roku 1970. V obci potřebná občanská vybavenost, napojení na dálnici D1. Na nemovitosti nevázne žádné zástavní právo, lze řešit hypotečním úvěrem. V případě zájmu o podrobné informace a prohlídku domu kontaktujte makléře zakázky.


Prohlídky a prodej zprostředkuje

Kateřina Sedláčková
E-mail: sedlackovakaterina@email.cz
Telefon: 731407412

Aktuálně zastupuje u 16 nemovitostí


Nezávazně se zeptejte! chcete více informací o nemovitosti?

Odesláním souhlasíte s poskytnutím dat třetí straně (= realitní kanceláři). Nezbytné, abychom dotaz mohli poslat. Vaše data nezneužijeme.
Pole označené (*) jsou povinné.

Zastupující realitní kancelář

All In Reality
Ověřená realitní kancelář

Aktuálně má v nabídce 16 nemovitostí


Sdílejte nemovitost

Trvalý odkaz
Kontaktovat prodejce

Číslo zakázky 2025-09-11-1
Typ Prodej
Poplatky včetně poplatků
Právní servis včetně právního servisu
Kategorie Domy
Podkategorie Rodinný
Umístění objektu Centrum obce
Plocha pozemku 407 m²
Užitná plocha 150 m²
Podlahová plocha 95 m²
Počet místností 5 a více pokojů
Nízkoenergetický Ne
Stavba Smíšená
Stav objektu Před rekonstrukcí
Bezbariérový Ne
Počet podlaží 1
Počet podzemních podlaží 1
Voda Dálkový vodovod
Elektřina 230V
Topení Lokální tuhá paliva
Balkon Ne
Lodžie Ne
Terasa Ne
Bazén Ne
Garáž Ne
Parkování Ne
Sklep Ne
Výtah Ne
Energetická náročnost budovy C - Úsporná
Doprava Dálnice, MHD
Komunikace Asfaltová


Inzerát exportován programem: realitní správce 11.9.2025 000 15:12 (poslední úprava: 31.10.2025 000 12:18)
Chcete získat více informací o nemovitosti?
Načítání...