Řazení: od nejnovějších | od nejlevnějších  |  Nejdříve ověřené RK: ano | ne

Prodej pozemku 540m2, Praha 5 - Barrandov
Pozemek | Ostatní | 540m²
před 3 měsíci

prodej novostavby RD 166 m2, Nová Ves II, Rostoklaty
Dům | Rodinný | 166m²
před 4 dny

K pronájmu, areál na zpracování masa, Špidrova č.p 84, Vimperk
Komerční | Výroba | 22351m²
před 2 měsíci

K prodeji, areál na zpracování masa, Špidrova č.p 84, Vimperk
Komerční | Výroba | 22351m²
před měsícem

Prodej nového bytu 2+kk s terasou okr. Znojmo
Byt | 2+kk | 66m²
před 22 dny

Pozemek pro výstavbu určenou k rekreaci
Pozemek | Bydlení | 3129m²
před 2 měsíci

prodej 2 komerčních nemovitostí v Ostravě
Komerční | Ostatní | 1620m²
před měsícem
14 000 000

Rodinný dům 6kk, Telce (Peruc)

Ulice Na Skokanu v Peruci, okres Louny

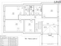
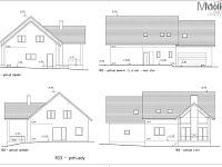
Nabízíme k prodeji rodinný dům o velikosti 6kkse dvěma nadzemními podlažími s garáží. Ideální dům pro rodiny, které hledají moderní a pohodlné bydlení v klidném prostředí. Promyšlená dispozice nabízí dostatek prostoru pro všechny členy rodiny. Díky tepelnému čerpadlu vzduch-voda (Power World PW040 s Wi-Fi ovládáním) je bydlení energeticky úsporné a komfortní po celý rok. Telce jsou klidná obec s výbornou dostupností do Prahy (cca 30 minut autem) a vlakovým spojením do Kralup nad Vltavou. V obci je základní občanská vybavenost škola, pošta, obchod, sportovní a volnočasové možnosti ideální místo pro rodiny, které hledají kombinaci klidu a komfortu. Seriózní jednání, možná dohoda. Možno financovat jinou nemovitostí na protiúčet (dům, byt, zahrada, garáž). Více informací u uvedeného makléře 7 dní v týdnu.


Prohlídky a prodej zprostředkuje

Radek Molík
E-mail: tovor12@gmail.com
Telefon: +420 777090011
Telefon: +420 777090011

Aktuálně zastupuje u 97 nemovitostí


Nezávazně se zeptejte! chcete více informací o nemovitosti?

Odesláním souhlasíte s poskytnutím dat třetí straně (= realitní kanceláři). Nezbytné, abychom dotaz mohli poslat. Vaše data nezneužijeme.
Pole označené (*) jsou povinné.

Zastupující realitní kancelář

Molík reality s.r.o.

Aktuálně má v nabídce 360 nemovitostí


Sdílejte nemovitost

Trvalý odkaz
Kontaktovat prodejce
Tip: více fotografií k dispozici u makléře

Číslo zakázky MR14691
Typ Prodej
Provize včetně provize
Právní servis včetně právního servisu
Kategorie Domy
Podkategorie Rodinný
Plocha pozemku 895 m²
Plocha zahrady 674 m²
Užitná plocha 353 m²
Zastavěná plocha 221 m²
Podlahová plocha 442 m²
Počet místností Atypický
Stavba Cihlová
Stav objektu Velmi dobrý
Bezbariérový Ne
Počet podlaží 2
Balkon Ne
Lodžie Ne
Terasa Ne
Bazén Ne
Garáž Ne
Parkování Ne
Sklep Ne
Energetická náročnost budovy C - Úsporná


Inzerát vytvořen 28.1.2026 000 21:44 (poslední úprava: 9.2.2026 000 23:16)
Chcete získat více informací o nemovitosti?
Načítání...