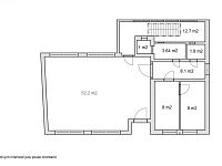
Nabízíme k prodeji menší rodinný dům s pozemkem o výměře 407 m2. Nemovitost je koncipována jako bydlení 1+1 s dílnou (dílna 52 m2), RD částečně podsklepen, ve 2.NP půdní prostor. V katastru nemovitostí objekt veden jako rodinný dům, pozemek stavební. Na stavebním úřadě předjednána i možnost výstavby nového RD. Možné využití jako chalupa, podnikání se zázemím, po úpravách na trvalé bydlení. Na pozemku kůlna, přístřešek pro případné parkování vozu. Připojena voda, elektřina, vnitřní septik s přepadem napojen na obecní kanalizaci. Plyn není připojen (před domem v obecní komunikaci), topení na tuhá paliva. Stavba přibližně z roku 1970. V obci potřebná občanská vybavenost, napojení na dálnici D1. Na nemovitosti nevázne žádné zástavní právo, lze řešit hypotečním úvěrem. V případě zájmu o podrobné informace a prohlídku domu kontaktujte makléře zakázky.
Kateřina Sedláčková
E-mail:
sedlackovakaterina@email.cz
Telefon: 731407412
Aktuálně zastupuje u 16 nemovitostí
All In Reality
Ověřená realitní kancelář
Aktuálně má v nabídce 16 nemovitostí
| Číslo zakázky | 2026-01-30-1 |
| Typ | Prodej |
| Právní servis | včetně právního servisu |
| Kategorie | Domy |
| Podkategorie | Rodinný |
| Umístění objektu | Centrum obce |
| Plocha pozemku | 407 m² |
| Užitná plocha | 150 m² |
| Podlahová plocha | 95 m² |
| Počet místností | 5 a více pokojů |
| Nízkoenergetický | Ne |
| Stavba | Smíšená |
| Stav objektu | Před rekonstrukcí |
| Bezbariérový | Ne |
| Počet podlaží | 1 |
| Počet podzemních podlaží | 1 |
| Voda | Dálkový vodovod |
| Elektřina | 230V |
| Topení | Lokální tuhá paliva |
| Balkon | Ne |
| Lodžie | Ne |
| Terasa | Ne |
| Bazén | Ne |
| Garáž | Ne |
| Parkování | Ne |
| Sklep | Ne |
| Výtah | Ne |
| Energetická náročnost budovy | C - Úsporná |
| Doprava | Dálnice, MHD |
| Komunikace | Asfaltová |