Řazení: od nejnovějších | od nejlevnějších  |  Nejdříve ověřené RK: ano | ne

Prodej administrativní budovy cca 1250 m2 + 20 parkovacích míst
Komerční | Kanceláře | 1250m²
před měsícem 22 900 000

Prodej administrativní budovy cca 1250 m2 + 20 parkovacích míst
Komerční | Kanceláře | 1250m²
před měsícem 22 900 000

prodej nebytového prostoru v Ústí nad Labem- Centrum, ulice Masarykova
Komerční | Obchodní prostory | 126m²
před 28 dny

Prodej historické administrativní budovy
Komerční | Kanceláře | 1000m²
před 2 hodinami
na cenu se poptejte u makléře

Prodej historické administrativní budovy

Ulice Brněnská v Ústí nad Labem, okres Ústí nad Labem

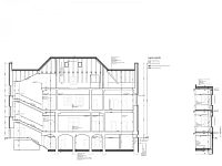
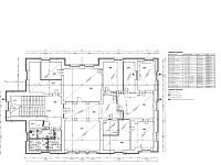
Budova bývalého zdravotního střediska u Spolchemie v centru Ústí nad Labem o celkové ploše cca 1000 m2. Celkem 3 nadzemní podlaží a plnohodnotný sklep. Budova je aktuálně vyklizená, vyčištěná a připravená k rekonstrukčním pracím. V rámci kupní ceny je k dispozici projekt pro rekonstrukci (stavební dokumentace pro stavební povolení) a architektonická studie. Stavební dokumentace je vyhotovena pro záměr vybudování kancelářské budovy. Dle platného územního plánu je možné budovu přestavět pro jakékoliv komerční či rezidenční využití. Ideální například pro zdravotní středisko. Spolu s budovou se prodává i pozemek okolo budovy o výměře 428 metrů čtverečních, kde si může majitel zřídit parkovací stání nebo ho využívat jako zahradu (dále je možné jednat i o prodeji přilehlého parkoviště pro cca 30 osobních vozidel o rozloze cca 750 m2). Přímé spojení na autem na dálnici D8 - 5 minut jízdy bez zajíždění do centra města. Přímé spojení pěší chůzí do centra města.


Prohlídky a prodej zprostředkuje

Petr Krejčí
E-mail: email@petrkrejci.net
Telefon: +420774336060

Aktuálně zastupuje u 17 nemovitostí


Nezávazně se zeptejte! chcete více informací o nemovitosti?

Odesláním souhlasíte s poskytnutím dat třetí straně (= realitní kanceláři). Nezbytné, abychom dotaz mohli poslat. Vaše data nezneužijeme.
Pole označené (*) jsou povinné.

Zastupující realitní kancelář

LeoReal
Ověřená realitní kancelář

Aktuálně má v nabídce 169 nemovitostí


Sdílejte nemovitost

Trvalý odkaz
Kontaktovat prodejce

Číslo zakázky 28032024
Typ Prodej
Kategorie Komerční
Podkategorie Kanceláře
Umístění objektu Centrum obce
Užitná plocha 1,000 m²
Plocha kanceláří 1,000 m²
Nízkoenergetický Ne
Stavba Cihlová
Stav objektu V rekonstrukci
Bezbariérový Ne
Počet podlaží 3
Voda Dálkový vodovod
Elektřina 230V
Odpad Veřejná kanalizace
Topení Lokální plynové
Balkon Ne
Lodžie Ne
Terasa Ne
Garáž Ne
Parkování Ne
Sklep Ne
Výtah Ne
Energetická náročnost budovy G - Mimořádně nehospodárná


Inzerát exportován programem: realitní správce 24.4.2026 000 16:58
Chcete získat více informací o nemovitosti?
Načítání...