Řazení: od nejnovějších | od nejlevnějších  |  Nejdříve ověřené RK: ano | ne
Prodej pozemků, Zabrušany
Pozemek | Komerční | 15490m²
před 2 hodinami 7 500 000
Rodinný dům, Postoloprty
Dům | Rodinný | 310m²
před 2 hodinami 2 799 900
Krásný částečně zařízený 1+kk v komplexu Garden Towers
Byt | 1+kk | 35m²
před 3 hodinami 18 000 za měsíc
+ poplatky cca 4000 Kč
Pěkný zařízený/částečně zařízený 3+kk/100 m2/B/G
Byt | 3+kk | 100m²
před 3 hodinami 35 000 za měsíc
, + poplatky (služby)
RD 3+1 v Horním Částkově, Habartov se zahradou 944m2 a samostatnou garáží.
Dům | Rodinný | 150m²
před 8 hodinami 4 690 000
Prodej 3+1 Marie Majerové s balkonem
Byt | 3+1 | 61m²
před 10 hodinami 2 660 000
Prodej útulného mezonetu blízko centra Plzně s terasou.
Byt | 3+1 | 105m²
před 11 hodinami 5 990 000
Prodej 2+1 s balkonem, Spartakiádní
Byt | 2+1 | 61m²
před 11 hodinami 2 890 000
Pronájem kancelářských prostor, 107m2, Praha 3 - Žižkov, nezařízené, 3 místnosti, soc. zázemí
Komerční | Kanceláře | 107m²
před 12 hodinami 29 990 za měsíc
+ záloha na domovní služby (cca 1.000,-Kč/měs.) + přepis el. a plynu na nájemce
Pronájem parkovacího místa v podzemní garáži, Praha 2 - Vinohrady, zakladač
Ostatní | Garážové stání | 20m²
před 12 hodinami 3 200 za měsíc
+ DPH + vratná kauce + provize RK
na cenu se poptejte u makléře

2kk nám. Míru BJ č.4

Ulice nám. Míru v Frenštátě pod Radhoštěm; Frenštátu pod Radhoštěm, okres Nový Jičín

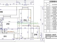
Nabízíme kompletně zrekonstruovaný byt 2kk v prvním patře dvou podlažního domu vedle hotelu Přerov. Lze vybudovat venkovní terasu na přístavbě přízemí. Půdorys najdete v příloze. Ihned k dispozici. Pro více informací volejte po-pa 8-16 hod.


Prohlídky a prodej zprostředkuje

Nemovitosti v Beskydech centrála
E-mail: kancelar@nemovitostivbeskydech.cz
Telefon: +420 725335533
Telefon: +420 725335533

Aktuálně zastupuje u 13 nemovitostí


Nezávazně se zeptejte! chcete více informací o nemovitosti?

Odesláním souhlasíte s poskytnutím dat třetí straně (= realitní kanceláři). Nezbytné, abychom dotaz mohli poslat. Vaše data nezneužijeme.
Pole označené (*) jsou povinné.

Zastupující realitní kancelář

Nemovitosti v Beskydech.cz
Ověřená realitní kancelář

Aktuálně má v nabídce 15 nemovitostí


Sdílejte nemovitost

Trvalý odkaz
Kontaktovat prodejce

Číslo zakázky 7
Typ Prodej
Právní servis včetně právního servisu
Kategorie Byty
Podkategorie 2+kk
Užitná plocha 51 m²
Podlahová plocha 51 m²
Plocha balkonu 3 m²
Plocha terasy 12 m²
Stavba Cihlová
Stav objektu Dobrý
Bezbariérový Ne
Vlastnictví Osobní
Počet podlaží 2
Voda Dálkový vodovod
Podlaží 2
Balkon Ne
Lodžie Ne
Terasa Ne
Garáž Ne
Parkování Ne
Sklep Ne
Energetická náročnost budovy G - Mimořádně nehospodárná (neuvedeno)


Inzerát vytvořen 16.1.2025 000 00:10 (poslední úprava: 14.12.2025 000 15:44)
Chcete získat více informací o nemovitosti?
Načítání...