Řazení: od nejnovějších | od nejlevnějších  |  Nejdříve ověřené RK: ano | ne
Byt 2+1, ul. Jungmannova
Byt | 2+1 | 101m²
před 9 hodinami 4 160 000
Byt 2kk, ul. Jungmannova
Byt | 2+kk | 66m²
před 9 hodinami 2 900 000
Byt 2+kk, ul. Hamerská, Litvínov
Byt | 2+kk | 40m²
včera 9 200 za měsíc
Byt 3kk,ul. Jungmannova
Byt | 3+kk | 98m²
včera 5 125 000
Byt 3+1, ul. Jungmannova
Byt | 3+1 | 124m²
včera 5 220 000
Byt 3+1, ul. Jungmannova
Byt | 3+1 | 122m²
včera 6 290 000
Pronájem 4+1 82m2 + 7m2 lodžie, P4 Chodov, ul. Blatenská, komora, zařízen
Byt | 4+1 | 89m²
včera 26 000 za měsíc
+ poplatky 6000,-Kč, + elektřina, kauce, provize
Krásný nový 1+kk/50 m2, předzahrádka, rezidence Nuselský pivovar
Byt | 1+kk | 50m²
včera 22 500 za měsíc
+ poplatky 3500 Kč + el., kauce, provize
Rodinný dům, Děčín
Dům | Rodinný | 350m²
včera 7 999 000
8 960 000
Cena včetně domu na klíč, DPH a pozemku

Prodej výstavby domu na pozemku v Holešově

Holešov, okres Kroměříž

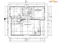
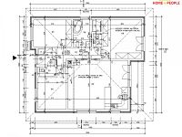
Zprostředkujeme Vám nabídku výstavby domu typu Markéta 4+kk, 115m² v provedení na klíč v Holešově ulice Kvasničkova na pozemku 592m². Projekt ekonomického domu Markéta o dispozici 4+kk zastřešuje aktuální potřeby dnešní doby se zastavěnou plochou 115m² a užitnou plochou 94m². Jedná se o kvalitní zděnou stavbu z materiálu Porfix 300 a díky minimalizaci hluchých prostorů a přesunuté střešní konstrukci zároveň cenově nenáročný rodinný dům. Svojí jednoduchou konstrukcí je předurčený pro rychlou a nekomplikovanou výstavbu. Optimální půdorys poskytuje výborný poměr mezi velikostí plochy obvodových stěn a vnitřního prostoru. Minimální plocha obvodových stěn takto šetří náklady nejen při výstavbě, ale i při vytápění domu. Ekonomický dům Markéta je navrhnutý tak, aby měsíční provozní náklady na tento dům byly přibližně třikrát nižší než u bytu podobné podlahové výměry. Prostředky ušetřené na provozu můžete použít například na splátky hypotéky, čímž se dům stává dostupný téměř pro každého. Uvedená cena obsahuje pozemek, základovou desku, projekt, vyřízení stavebního povolení, DPH a stavba bude provedena na klíč a předána k okamžitému užívání. Kolaudace je samozřejmostí. Těchto typů domů jsme v minulosti realizovali nespočet a tak máme spousty zajímavých dispozičních řešení. (Součástí ceny není kuchyňská linka a světla – dokážeme za zvýhodněných podmínek zajisti přes naše dodavatele). V uvedené ceně můžete počítat také s finálními povrchovými úpravami exteriéru i interiéru, a to včetně elektroinstalací, sanitárního vybavení s bateriemi, interiérovými dveřmi včetně obložek a vytápění bude řešeno teplovodním podlahovým topením v kombinaci tepelného čerpadla se 180L zásobníkem na teplou vodu. Dle dohody změníme systém vytápění nebo vystavíme komín pro krbové kamna nebo pro využití krbové vložky. Kryté garážové stání spojené s domem nebo terasu za příplatek. Pro náročnější klienty máme nabídku nadstandardního vybavení chytré domácnosti, klimatizaci,


Prohlídky a prodej zprostředkuje

Petr Sedlařík - Certifikovaný realitní makléř s praxí
E-mail: sedlarik@home4people.cz
Telefon: 606 765 159

Aktuálně zastupuje u 26 nemovitostí


Nezávazně se zeptejte! chcete více informací o nemovitosti?

Odesláním souhlasíte s poskytnutím dat třetí straně (= realitní kanceláři). Nezbytné, abychom dotaz mohli poslat. Vaše data nezneužijeme.
Pole označené (*) jsou povinné.

Zastupující realitní kancelář

HOME 4 PEOPLE
Ověřená realitní kancelář

Aktuálně má v nabídce 206 nemovitostí


Sdílejte nemovitost

Trvalý odkaz
Kontaktovat prodejce

Číslo zakázky 31815
Typ Prodej
Kategorie Domy
Podkategorie Na klíč
Umístění objektu Okraj obce
Plocha pozemku 592 m²
Užitná plocha 115 m²
Zastavěná plocha 115 m²
Podlahová plocha 115 m²
Počet místností 4 pokoje
Stavba Cihlová
Stav objektu Ve výstavbě
Počet podlaží 1
Balkon Ne
Lodžie Ne
Terasa Ne
Bazén Ne
Garáž Ne
Parkování Ne
Sklep Ne
Energetická náročnost budovy A - Mimořádně úsporná
Ukazatel energetické náročnosti budovy 38


Inzerát vytvořen 13.6.2025 000 12:43 (poslední úprava: 5.11.2025 000 14:56)
Chcete získat více informací o nemovitosti?
Načítání...