Řazení: od nejnovějších | od nejlevnějších  |  Nejdříve ověřené RK: ano | ne

prodej stavebního pozemku, 1211m2, Pod Haštalem, Želiv
Pozemek | Bydlení | 1211m²
před 10 hodinami 1 767 za m²

Prodej stavebního pozemku, 918m2, Pod Haštalem, Želiv
Pozemek | Bydlení | 918m²
před 10 hodinami 1 767 za m²

Prodej stavebního pozemku, 1057m2, Pod Haštalem, Želiv
Pozemek | Bydlení | 1057m²
před 10 hodinami 1 767 za m²
1 767 za m²

Prodej stavebního pozemku, 918m2, Pod Haštalem, Želiv

Želiv, okres Pelhřimov

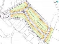
Dovoluji si nabídnout ke koupi stavební pozemek v obci Želiv. Lokalita Pod Haštalem je nově vznikající části obce. Samotná obec kompletně zajištuje zasíťování jednotlivých pozemků, výstavbu komunikací, chodníků i veřejného osvětlení. V listopadu proběhla kolaudace přípojek inženýrských sítí (vodovod, kanalizace, elektřina a datový kabel). Lokalita nabízí rozmanité výměry pozemků od 800 do 1211m². Prodej stavebních pozemků bude probíhat formou obálkové metody. Minimální nabídka činí 1760,60,-Kč za 1 metr čtvereční pozemku. Detaily i pravidla pro podání nabídky Vám rádi vysvětlíme. Lokalita pod Haštalem se nachází v klidné části obce Želiv. V docházkové vzdálenosti je škola, školka, restaurace i obchody. Želiv je perfektně fungující obec s ideálním zázemím pro rodinný život. Výhodou je také poloha obce. Města Humpolec i Pelhřimov se nachází v dojezdové vzdálenosti 15 minut. Obcí protéká řeka Želivka. Na dohled od parcel stojí vodní nádrž Trnávka, která je oblíbenou destinací v letních měsících (koupání, rybolov i vodní sporty). Nepropásněte tuto jedinečnou příležitost a zajistěte si své místo pro stavbu domu. Pro více informací kontaktujte realitního specialistu. Ev. číslo: 27367.


Prohlídky a prodej zprostředkuje

Radim Dalík
E-mail: dalik@reality11.cz
Telefon: 605 105 940
Telefon: 605 105 940

Aktuálně zastupuje u 14 nemovitostí


Nezávazně se zeptejte! chcete více informací o nemovitosti?

Odesláním souhlasíte s poskytnutím dat třetí straně (= realitní kanceláři). Nezbytné, abychom dotaz mohli poslat. Vaše data nezneužijeme.
Pole označené (*) jsou povinné.

Zastupující realitní kancelář

Reality 11
Ověřená realitní kancelář

Aktuálně má v nabídce 222 nemovitostí


Sdílejte nemovitost

Trvalý odkaz
Kontaktovat prodejce

Číslo zakázky 27367
Typ Prodej
Kategorie Pozemky
Podkategorie Bydlení
Umístění objektu Klidná část obce
Plocha pozemku 918 m²
Voda Dálkový vodovod
Odpad Veřejná kanalizace
Energetická náročnost budovy G - Mimořádně nehospodárná (neuvedeno)


Inzerát vytvořen 10.12.2025 000 13:21
Chcete získat více informací o nemovitosti?
Načítání...